Room Descriptions
JEAN CRESCENT, HIGHER COMPTON, PLYMOUTH, PL3 6PZ
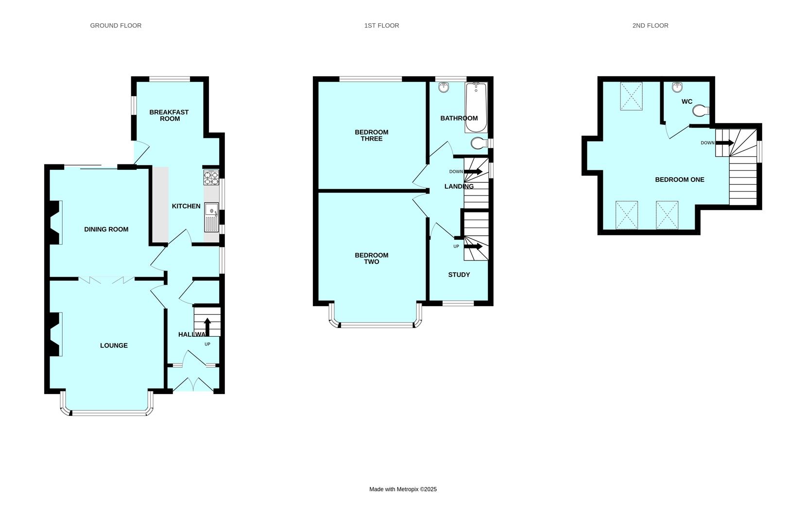
ACCOMMODATION
Entrance via twin uPVC double-glazed doors with leaded light glazed panel which opens into the porch.
PORCH1.71 x 0.2 (5'7" x 0'7")
Wooden door with stained glass panel & leaded light feature. Stained glass panel windows on either side with leaded light feature which opens into the entrance hall.
ENTRANCE HALL4.11 x 1.73 (13'5" x 5'8")
Dado rail. Staircase rising to the first floor landing with under-stairs storage cupboards & open recess. Doors lead to the lounge, dining room & kitchen. uPVC double-glazed window to the side.
LOUNGE3.81 x 3.57 plus the bay (12'5" x 11'8" plus the b
Feature stone fireplace with surround & hearth, inset living flame gas fire. uPVC double-glazed curved bay window to the front. Picture rail. Bi-fold wooden doors open into the dining room.
DINING ROOM3.78m x 3.61m (12'5" x 11'10")
Feature fireplace with wood burner inset into chimney breast. Sliding uPVC double-glazed patio door opens to the rear garden. Picture rail.
KITCHEN2.41 x 2.32 (7'10" x 7'7")
Matching base & wall mounted units to include spaces for a cooker & dishwasher. Roll edge laminate work surfaces has inset stainless steel sink unit with mixer tap & tiled splash-back. uPVC double-glazed window to the side. Tiled effect vinyl flooring. Square arch opens into the breakfast room.
BREAKFAST ROOM2.72 x 2.66 (8'11" x 8'8")
Wall mounted Worcester boiler. Position for a washing machine. Space for an upright fridge/freezer. Ample space for a dining table. Dual aspect with uPVC double-glazed window to the rear & side. uPVC double-glazed door opens to the rear garden. Tiled effect vinyl flooring.
FIRST FLOOR LANDING2.54 x 1.99 (8'3" x 6'6")
Dado rail. uPVC double-glazed window to the side. Doors leading to bedroom 2, 3, bathroom & study.
BEDROOM TWO3.6 x 3.44 plus the bay to the front (11'9" x 11'3
uPVC double-glazed bay window to the front. Picture rail.
BEDROOM THREE3.62 x 3.54 (11'10" x 11'7")
Picture rail. uPVC double-glazed window to the rear overlooking the garden.
BATHROOM2.51 x 1.99 (8'2" x 6'6")
Matching suite of panelled bath with electric Mira shower over, close coupled wc & pedestal wash hand basin. Part-tiled walls. Dual aspect with obscured uPVC double-glazed window to the rear & side. Vinyl flooring. Access hatch to roof void.
STUDY2.11 x 2.07 (6'11" x 6'9")
uPVC double-glazed window to the front. Staircase leads up to the master bedroom.
MASTER BEDROOM5.6 narrowing to 2 x 4.89 narrowing to 2.52 (18'4"
uPVC double-glazed window to the side. Two velux windows to the front. One velux window to the rear. Ceiling spotlights. Storage cupboards into the eaves. Door to the en-suite.
EN-SUITE1.63 x 1.5 (5'4" x 4'11")
Close coupled wc & pedestal wash hand basin. Tiled splash-back. Restricted head height. Velux window to the rear.
GARAGE5.76 x 3.24 (18'10" x 10'7")
uPVC double-glazed window to the rear. Light & power available. Solar panels fitted on roof which are privately owned.
OUTSIDE
The property is approached via a shared gravel driveway with the property having a brick hardstand to the front. A couple of steps lead up to the front door.
GARDEN
A wooden picket gate opens to the enclosed south-facing rear garden with paved patio. A path bisects down through the garden with lawn to one side with raised flower beds & further shrubs to the other side. A patio stands to the rear of the property. Greenhouse. Boundaries are walled & wood panel fencing.
COUNCIL TAX
Plymouth City Council
Council Tax Band: C
SERVICES PLYMOUTH
The property is connected to all the mains services: gas, electricity, water and drainage.
Solar panels.




