Room Descriptions
MAYNARDE CLOSE, PLYMPTON, PLYMOUTH PL7 2XX
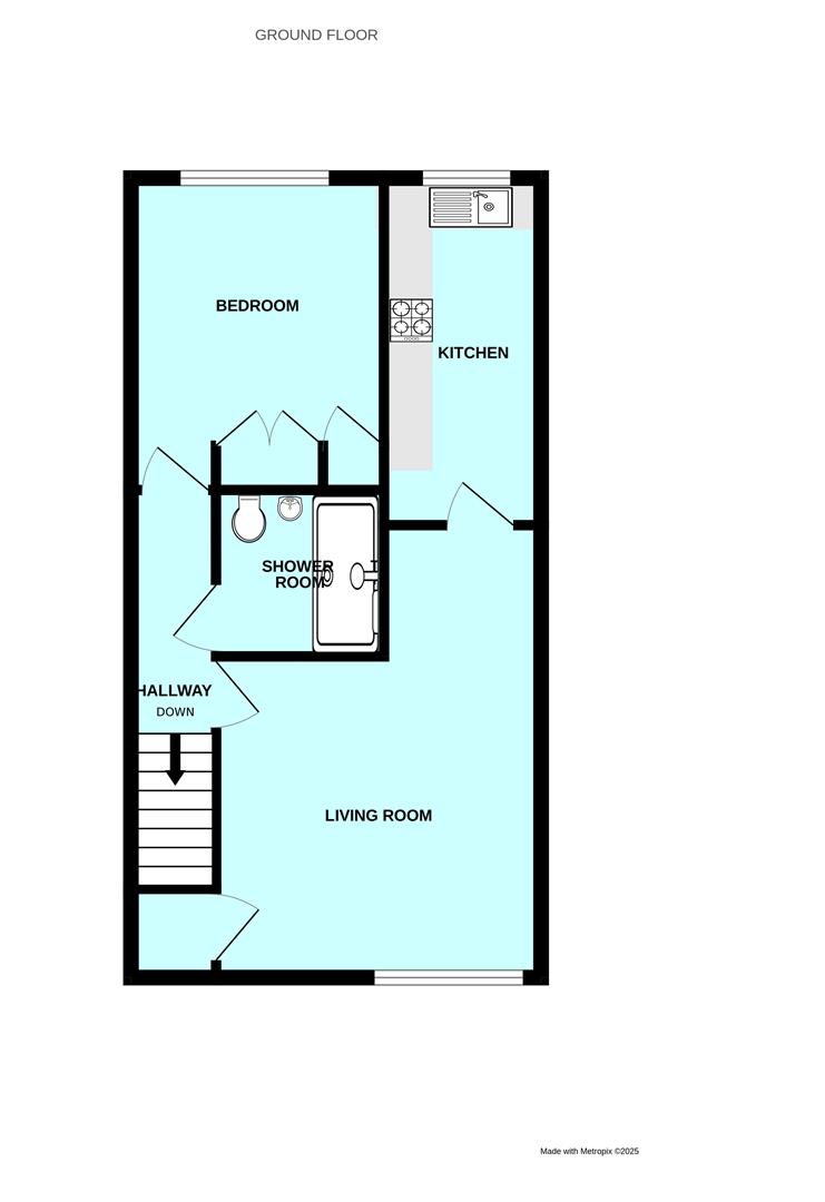
ACCOMMODATION
Solid wood door, with obscured glass panelling, opening into the entrance hall.
ENTRANCE HALL1.52 x 0.91 (4'11" x 2'11")
Stairs ascending to the landing.
LANDING4.77 x 0.91 (15'7" x 2'11")
Doors leading to the lounge, bedroom and shower room. Drop-down hatch with pull-down ladder to boarded, insulated loft space with lighting.
LOUNGE5.24 x 3.70 max (17'2" x 12'1" max)
A bright room with lots of natural light. Storage cupboard. uPVC double-glazed window to the front elevation. Door opening into the kitchen.
KITCHEN3.95 x 1.75 (12'11" x 5'8")
Newly fitted with a range of matching white high-gloss base and wall-mounted units incorporating a roll-edged wood-effect laminate worktop with an inset 4-ring electric hob and a stainless-steel extractor over. Inset stainless-steel sink unit with mixer tap. Integrated electric oven. Space for a washing machine and an upright fridge/freezer. Wall-mounted boiler housed within one of the cupboards. uPVC double-glazed window to the rear elevation.
BEDROOM3.04 x 2.85 (9'11" x 9'4")
A spacious double bedroom with a built-in double and a built-in single wardrobe. uPVC double-glazed window to the rear elevation.
SHOWER ROOM1.86 x 1.33 (6'1" x 4'4")
Newly-fitted with a matching suite comprising a double-sized walk-in cubicle with an electric shower, vanity-style wash handbasin with mixer tap and storage beneath and a close-coupled wc. Chrome heated towel rail. Aqua-boarding to walls. Vinyl flooring. Extraction vent.
OUTSIDE
The property is approached via a concrete walkway. External storage shed. Allocated parking in a bay adjacent to the property.
COUNCIL TAX PCC
Plymouth City Council
Council Tax Band: A
PLYMPTON SERVICES
The property is connected to all the mains services: gas, electricity, water and drainage.
WHAT3WORDS
\sofa.stack.scan
MANAGEMENT
Annual Peppercorn rent £1.01. No service charge. The freehold management company is Wimpey Holdings. The majority of the grass is maintained by Plymouth City Council - the remainder by the home owners.
