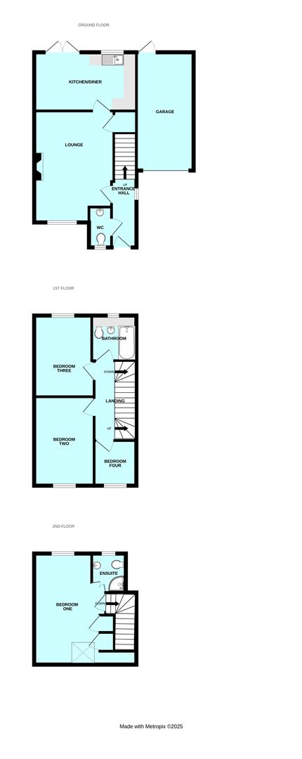
Room Descriptions
SWALLOWS END, PLYMSTOCK, PL9 7DZ
ACCOMMODATION
Access to the property is gained via the uPVC entrance door leading into the entrance hall.
ENTRANCE HALL
Providing access to the accommodation. Stairs rising to the first floor. Laminate floor. Double-glazed window to the front elevation.
DOWNSTAIRS CLOAKROOM/WC1.75 x 0.75 (5'8" x 2'5")
Fitted with a low level toilet and pedestal wash basin. Obscured double-glazed window to the front elevation.
LOUNGE4.75m x 3.45m (15'7 x 11'4)
Double-glazed window to the front elevation. Inset feature fireplace with an electric fire. Under-stairs storage cupboard. Laminate floor. Doorway leading into the kitchen/dining room.
KITCHEN/DINING ROOM4.52m x 2.62m incl kitchen units (14'10 x 8'7 incl
Series of matching eye-level and base units with rolled-edge work surfaces and tiled splash-backs. Inset stainless-steel one-&-a-half bowl single drainer sink unit with mixer tap. Space for a gas cooker. Space for fridge-freezer. Space and plumbing for a dishwasher. Tiled floor. Double-glazed window to the rear elevation. French-style double-glazed doors leading out onto the rear garden.
FIRST FLOOR LANDING
Providing access to the first floor accommodation. Stairs rising to the top floor. Double-glazed window to the side elevation.
BEDROOM TWO3.96m x 2.57m (13' x 8'5)
Double-glazed window to the front elevation. Laminate floor.
BEDROOM THREE3.48m x 2.46m (11'5 x 8'1)
Double-glazed window to the rear elevation. Laminate floor.
BEDROOM FOUR2.06m x 1.88m (6'9 x 6'2)
Double-glazed window to the front elevation. Laminate floor.
BATHROOM1.96m x 1.68m (6'5 x 5'6)
White modern suite comprising a panel bath with a mixer tap, spray attachment and a shower screen, pedestal wash basin with a mixer tap and a low level toilet. Vertical towel rail/radiator. Obscured double-glazed window to the rear elevation.
BEDROOM ONE4.83m x 2.82m taken at widest points, sloping ceil
Located within the converted roof space. Built-in storage. Velux-style double-glazed window to the front elevation. Double-glazed window to the rear elevation. Doorway leading into the ensuite shower room.
ENSUITE SHOWER ROOM1.73m x 1.57m at widest points (5'8 x 5'2 at wides
Modern suite comprising a Quadrant-style corner shower with a double opening doors, shower unit and spray attachment, pedestal wash basin and a low level toilet. Wall-mounted towel rail/radiator. Obscured double-glazed window to the rear elevation.
GARAGE5.16m x 2.54m (16'11 x 8'4)
Up-&-over door to the front elevation. Power and lighting. Gas boiler. Plumbing for a washing machine. Courtesy door to the rear.
OUTSIDE
To the front of the property there is an open-plan lawned garden area with an adjacent drive leading to the attached garage. The rear garden is laid out on two levels with a paved area adjacent to the rear of the property. Steps rise to a level lawned and decked section of garden with raised planted borders. Further steps lead down to the rear of the garage. Outside cold tap.
COUNCIL TAX
Plymouth City Council
Council tax band D
SERVICES
The property is connected to all the mains services: gas, electricity, water and drainage.




