Room Descriptions
DUNSTONE VIEW, ELBURTON, PL9 8QH
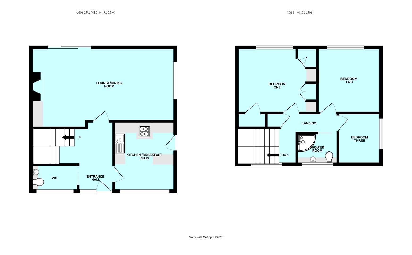
ACCOMMODATION
Front door opening into the entrance hall.
ENTRANCE HALL3.96m x 3.73m max dimensions (13' x 12'3 max dimen
Providing access to the ground floor accommodation. Stairs rising to the first floor. Under-stairs cupboards housing the gas meter, electric meter and consumer unit.
LOUNGE/DINING ROOM7.11m x 3.61m (23'4 x 11'10)
A dual aspect room with a window to the side elevation and sliding double-glazed doors to the rear elevation opening onto the garden. Fireplace with a matching stone hearth and plinth to one side.
KITCHEN/BREAKFAST ROOM3.58m x 3.02m (11'9 x 9'11)
Range of base and wall-mounted cabinets with matching fascias, work surfaces and tiled splash-backs. Ceramic style one-&-half bowl single drainer sink unit. Built-in double oven and grill. Inset 4-burner gas hob. Space for a free-standing fridge-freezer. Washing machine. Dishwasher. Breakfast area to the front with space for a small table and chairs. Tiled floor. Window to the front elevation providing lovely over Elburton towards Dartmoor. Obscured glazed door to the side leading to outside.
DOWNSTAIRS CLOAKROOM/WC2.29m x 1.19m (7'6 x 3'11)
Fitted with a wc with a concealed cistern and a push-button flush and a basin with storage beneath. Wall-mounted Vaillant gas boiler. Window with a fitted blind to the front elevation.
FIRST FLOOR LANDING
Providing access to the first floor accommodation. Recessed cupboard with slatted shelving housing the hot water cylinder. Loft hatch with pull-down loft ladder. Feature full-height window taking advantage of the position with lovely views towards Dartmoor.
BEDROOM ONE3.86m x 3.10m (12'8 x 10'2)
Window to the rear elevation. Original recessed wardrobe with hanging rail and shelf. Built-in wardrobes, cupboards, drawer units and a dressing table.
BEDROOM TWO3.15m x 3.15m (10'4 x 10'4)
Window to the rear elevation.
BEDROOM THREE2.59m x 1.98m (8'6 x 6'6)
Window to the side elevation.
SHOWER ROOM1.88m x 1.65m (6'2 x 5'5)
Comprising a shower, basin and wc with a concealed cistern and a push-button flush. Built-in storage cupboards. Chrome towel rail/radiator. Tiled floor. Fully-tiled walls. Window with a fitted blind to the front elevation.
SINGLE DETACHED GARAGE
Up-&-over style door to the front elevation. Side access door. Window.
OUTSIDE
To the front the garden is laid to lawn together with shrubs and a brick-paved pathway leads to the main front entrance. The garden to the side elevation is laid to lawn and a brick-paved pathway leads around the perimeter of the property accessing the rear garden. To the rear there is a brick-paved patio and shrubs together with an area laid to lawn and further shrubs. The brick-paved driveway to the side elevation provides off-street parking and access to the garage. The driveway leads onto Springfield Close.
COUNCIL TAX
Plymouth City Council
Council tax band C
SERVICES
The property is connected to all the mains services: gas, electricity, water and drainage.


