Room Descriptions
BLACKSTONE CLOSE, ELBURTON, PL9 8UQ
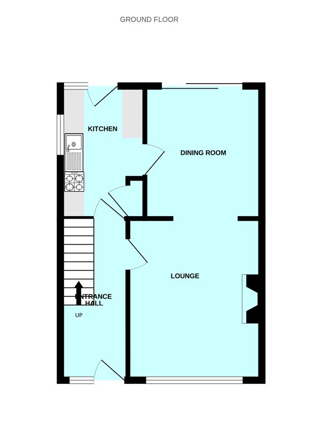
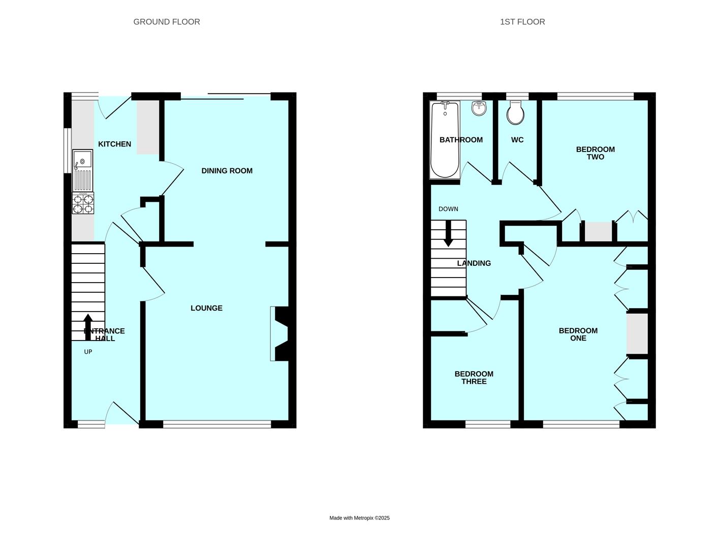
ACCOMMODATION
Obscured double-glazed front door with matching panel to side opening into the entrance hall.
ENTRANCE HALL3.99m x 1.80m (13'1 x 5'11)
Providing access to the ground floor accommodation. Staircase rising to the first floor. Under-stairs cupboard also housing the gas meter, electric meter and fuse box.
LOUNGE3.99m x 3.30m (13'1 x 10'10)
Window with fitted blinds to the front elevation. Stone-built fireplace and matching hearth.
DINING ROOM3.30m x 2.92m (10'10 x 9'7)
Sliding double-glazed patio doors with fitted blinds to the rear.
KITCHEN3.40m x 2.18m (11'2 x 7'2)
Range of base and wall-mounted cabinets with matching work surfaces and tiled splash-backs. Inset stainless-steel single drainer sink unit. Space for free-standing cooker and fridge-freezer. Space and plumbing for washing machine. Original larder cupboard fitted with shelving and housing the stopcock. Windows to 2 elevations. Obscured glazed door opening onto the rear garden.
FIRST FLOOR LANDING
Providing access to the first floor accommodation. Loft hatch with pull-down loft ladder. Window to the side elevation providing lovely views over Elburton towards Dartmoor.
BEDROOM ONE3.86m x 2.97m (12'8 x 9'9)
Window to the front elevation with views. Range of built-in wardrobes, cupboards and a dressing table. Matching bedside cabinets. Original recessed airing cupboard housing the hot water cylinder.
BEDROOM TWO3.53m x 2.84m (11'7 x 9'4)
Window to the rear elevation overlooking the garden. Built-in wardrobes, cupboards and a dressing table.
BEDROOM THREE2.82m x 1.98m (9'3 x 6'6)
Window to the front elevation with views. Over-stairs cupboard.
BATHROOM1.88m x 1.42m (6'2 x 4'8)
Comprising a bath with an electric shower system over and basin. Partly-tiled walls. Obscured window to the rear elevation.
SEPARATE WC
Fitted with a wc. Obscured window to the rear elevation.
GARAGE4.98m x 2.79m (16'4 x 9'2)
Up-&-over style door to the front elevation. Window to the side elevation.
OUTSIDE
The front garden is stocked with a variety of mature shrubs. A driveway provides access to the garage and a separate pathway leads to the main front door. There is an area of garden to the side providing access through to the rear garden. The rear garden is also stocked with a variety of mature shrubs and heathers together with areas laid to lawn. Adjacent to the rear elevation is a patio area.
COUNCIL TAX
Plymouth City Council
Council tax band C
SERVICES
The property is connected to all the mains services: gas, electricity, water and drainage.


