Room Descriptions
THE HAZEL, PLOT 15, COLLATON PARK
COLLATON PARK
Collaton Park is a multi-award winning unique development nestled in one of South Devon’s most stunning natural landscapes within the parish of the charming villages of Newton Ferrers and Noss Mayo.
The homes have been designed with sustainability at their core, with a diverse range of homes to suit every stage of life. Collaton Park is enriched by a variety of shared spaces, including an attenuation pond, a local shop, a welcoming parkland café, and expansive parkland, with footpaths leading to play areas, an orchard and rewilded spaces.
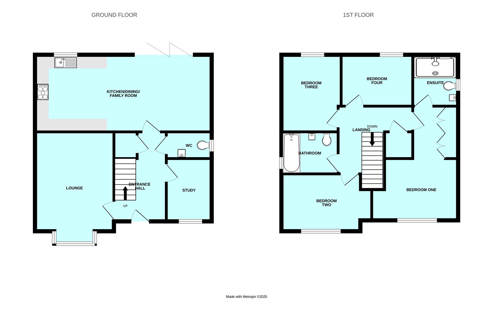
ACCOMMODATION
ENTRANCE HALL
DOWNSTAIRS CLOAKROOM/WC1.93m x 1.14m (6'4 x 3'9)
KITCHEN/DINING/FAMILY ROOM7.57m x 3.30m (24'10 x 10'10)
LIVING ROOM4.70m x 3.38m (15'5 x 11'1)
STUDY2.69m x 1.93m (8'10 x 6'4)
FIRST FLOOR LANDING
BEDROOM ONE3.48m x 3.05m (11'5 x 10'0)
ENSUITE2.34m x 1.70m (7'8 x 5'7)
BEDROOM TWO3.96m x 2.62m (13'0 x 8'7)
BEDROOM THREE3.30m x 2.64m (10'10 x 8'8)
BEDROOM FOUR3.02m x 2.29m (9'11 x 7'6)
BATHROOM2.67m x 2.44m (8'9 x 8'0)
AGENT'S NOTE
The internal images provided are from a previous Coln Signature Homes development and may contain upgrades at an additional cost. Specification items also vary from site to site - please speak to the sales consultant for further information.
AGENT'S NOTE
Curtains and blinds package, plus a £2000 john lewis voucher (Ts and Cs below)
Incentive Terms and Conditions:
• This offer is open to individuals who reserve a qualifying home between 22nd November and 24th December 2025.
• Qualifying homes are subject to change without prior notice.
• Eligible customers will receive £3,000 cashback to spend on their own curtains and blinds. Alternatively, we can arrange a package up to the value of £3,000 with a local supplier on your behalf, upon successful reservation and exchange of a home within the promotional period.
• If blinds and curtains are installed through our selected supplier, they may be fitted prior to completion, subject to agreement with our site team. If using your own supplier, installation must take place after completion.
• Eligible customers will also receive a John Lewis voucher worth £2,000, upon successful reservation of a home within the promotional period and legal completion.
• Vouchers will be sent via email within 2 weeks of legal completion.
• Use of the voucher is subject to the retailer’s own terms and conditions.
• The incentive must be mentioned at the time of reservation and recorded on the reservation form.
• Availability of the incentive is subject to mortgage lender approval.
• The voucher is non-transferable and cannot be exchanged for cash or any other alternative.
• This offer cannot be used in conjunction with any other promotion or discount unless expressly stated.
• If the reservation is cancelled or the buyer fails to complete the purchase, the incentive will be void.
• This promotion is subject to availability and may be withdrawn or amended at any time without prior notice.
• We reserve the right, at our discretion, to substitute the incentive with an alternative of equal or greater value if necessary.
• By participating in this promotion, participants agree to be bound by these Terms and Conditions.

