Room Descriptions
NETTON CLOSE, ELBURTON, PL9 8UL
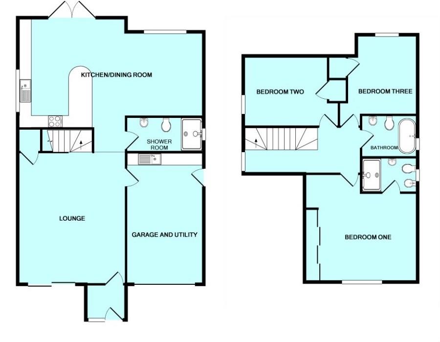
ACCOMMODATION
Front door opening into the entrance porch.
ENTRANCE PORCH
Oak flooring. Glazed door opening into the lounge.
LOUNGE5.64 x 4.70 (18'6" x 15'5")
Staircase with a hard wood rails and glass balustrade ascending to the first floor. Under-stairs storage cupboard. Wall-mounted flame-effect electric fire. Oak flooring. Feature vaulted ceiling with remote Velux skylight. Sliding patio doors with fitted shutters to the front elevation.
KITCHEN/DINING ROOM7.85 x 4.78 (25'9" x 15'8")
An open-plan room running the full-width of the property. Ample space for dining table and chairs. Range of kitchen cabinets with matching fascias and polished granite work surfaces, including a breakfast bar. Inset stainless-steel one-&-a-half bowl sink unit with a Quooker mixer tap providing boiling hot water and sparkling water. Built-in NEFF double oven and grill. NEFF combination microwave oven. NEFF induction hob with a glass splash-back and a stainless-steel NEFF cooker hood. Built-in Siemens dishwasher. Full-height fridge. Under work-top integral freezer. Oak flooring. Part vaulted ceiling with remote Velux skylights. Patio doors to the rear elevation opening onto the garden. Additional window overlooking the garden.
DOWNSTAIRS SHOWER ROOM3.02 x 1.47 (9'10" x 4'9")
Comprising a fitted shower with a curved glass screen, wall-mounted basin and wc. Chrome towel rail/radiator. Tiled floor. Fully-tiled walls. Inset ceiling spotlights. Obscured window to the side elevation.
FIRST FLOOR LANDING
A superb galleried landing with hard wood hand rails and glass balustrade providing views into the lounge. Window to the side elevation. Access to the first floor accommodation. Timber paddle staircase accessing the office.
OFFICE
Velux window to the rear elevation. Alcove with shelving, behind which is loft access space.
BEDROOM ONE5.00 x 4.75 (16'4" x 15'7")
A stunning master bedroom with feature vaulted ceiling. Window with fitted shutters situated within the gable. Range of wardrobes with sliding mirrored doors. Doorway opening into the ensuite shower room.
ENSUITE SHOWER ROOM2.64 x 1.47 (8'7" x 4'9")
Comprising a large walk-in shower with a glass screen, wall-mounted basin, wc and bidet. Chrome towel rail/radiator. Tiled floor. Fully-tiled walls. Inset ceiling spotlights. Obscured window to the side elevation.
BEDROOM TWO3.99 x 3.05 (13'1" x 10'0")
Dual aspect with a window to the side elevation and Velux skylight to the rear elevation. Built-in wardrobe. Vaulted ceiling.
BEDROOM THREE3.73 x 3.38 (12'2" x 11'1")
Vaulted ceiling with a Velux skylight to the rear elevation. Built-in wardrobe. Range of built-in drawer units with a matching dressing table.
FAMILY SHOWER ROOM2.64 x 1.78 (8'7" x 5'10")
Comprising a large walk-in shower with a glass screen, wall-mounted basin and wc. Chrome towel rail/radiator. Tiled floor. Fully-tiled walls. Inset ceiling spotlights. Obscured window to the side elevation.
GARAGE & UTILITY5.92 x 2.97 (19'5" x 9'8")
Remote door to the front elevation. Side access door. Power and lighting. To the rear of the garage, is a utility area with a work surface and tiled splash-back and stainless-steel single drainer sink. Cupboards beneath and above the work surface. Space for washing machine and tumble dryer.
CABIN
A detached garden building which offers an excellent facility including a shed with power and lighting, living room/bedroom with a shower room and wc. Built onto the back of the cabin is a lean-to with open storage.
OUTSIDE
To the front, the garden is paved providing plentiful off-road parking. A pathway leads around the side of the house, to the rear. The rear garden has been landscaped with natural stone paving and retained shrub and flower beds. There is a timber pergola and a substantial timber open porch built on to the rear of the property providing a covered area for seating. Outside taps. Outside power points.
COUNCIL TAX
Plymouth City Council
Council tax band E
SERVICES
The property is connected to electricity, water and drainage. There is under-floor heating to the ground floor with radiators on the first floor.


