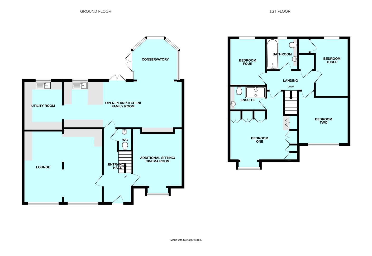
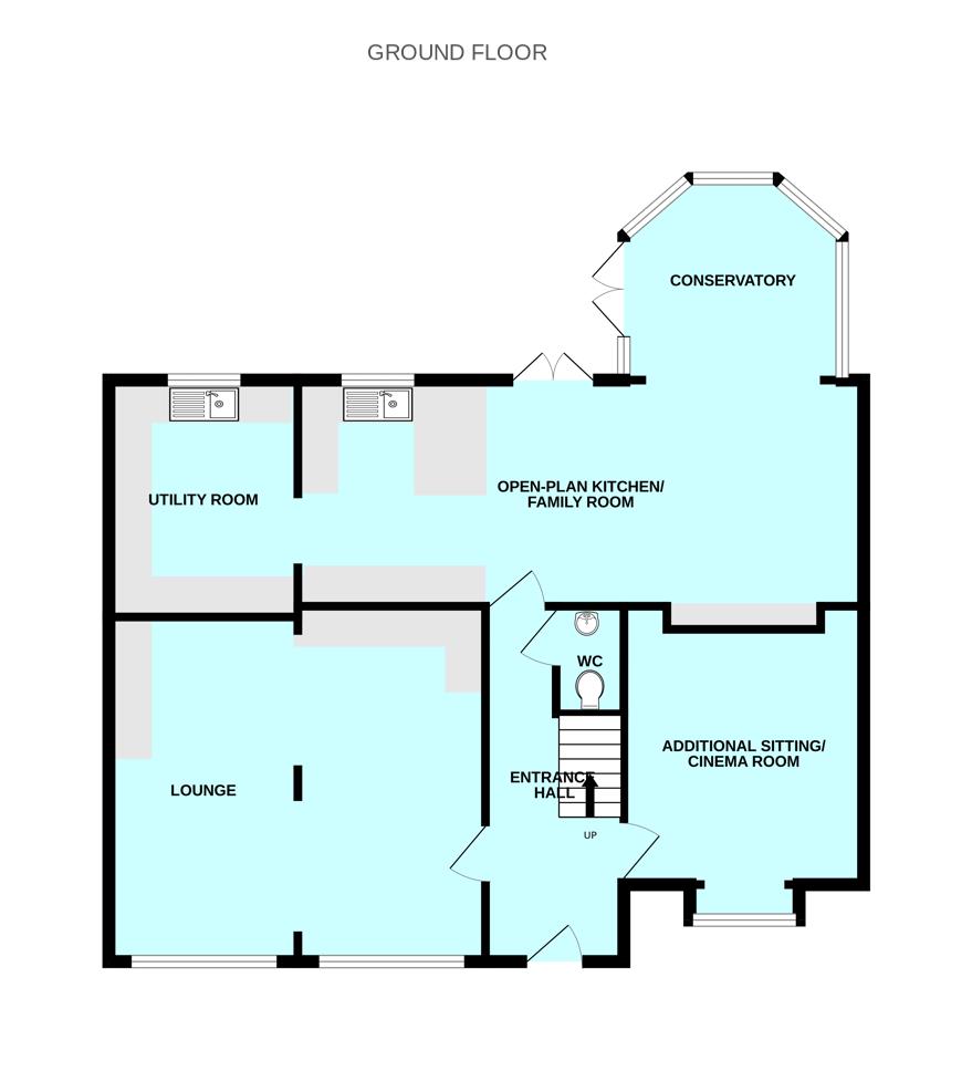
Room Descriptions
NIGHTINGALE CLOSE, ELBURTON, PL9 8PN
SUMMARY
An executive-style detached house situated in this highly sought-after location within Elburton enjoying a landscaped south-facing garden. The accommodation briefly comprises an entrance hall with downstairs cloakroom/wc, lounge, additional sitting/cinema room, stunning open-plan kitchen/family room leading to the conservatory & separate utility room. On the first floor there are 4 bedrooms, family bathroom & ensuite shower room. Parking to the front. Double-glazing & central heating.
ACCOMMODATION
Front door opening into the entrance hall.
ENTRANCE HALL5.18m x 1.80m (17' x 5'11)
Staircase ascending to the first floor. Under-stairs cupboard.
OPEN-PLAN KITCHEN/FAMILY ROOM8.03m x 3.02m (26'4 x 9'11)
A superb open-plan room providing ample space for seating. The kitchen is fitted with a range of cabinets with matching fascias, work surfaces and tiled splash-backs. Breakfast bar. Single drainer sink unit. Twin AEG ovens. Separate AEG induction hob with a cooker hood over. Full-height integral fridge. Integral dishwasher. Tiled floor. Windows overlooking the south-facing rear garden. Open-plan access through into the conservatory, which is currently used as a dining area. Glazed door, also providing views over the gardens.
UTILITY ROOM3.00m x 2.59m (9'10 x 8'6)
Stainless-steel single drainer sink unit. Space for washing machine and tumble dryer. Space for free-standing freezer beneath the work surface. Larder cupboard. Tiled floor. Window to the rear elevation overlooking the garden.
CONSERVATORY2.87m x 2.74m (9'5 x 9')
Open-plan access from the kitchen/family room. Tiled floor throughout. Windows with fitted blinds overlooking the gardens.
LOUNGE5.49m x 4.88m (18' x 16')
2 windows with fitted blinds to the front elevation. Built-in storage cupboards, also housing the gas boiler.
ADDITIONAL SITTING/CINEMA ROOM3.99m x 3.38m (13'1 x 11'1)
Suspended bay window with fitted blinds to the front elevation.
DOWNSTAIRS CLOAKROOM/WC
Comprising a wc and a basin with a cupboard beneath.
FIRST FLOOR LANDING3.12m x 1.57m (10'3 x 5'2)
Providing access to the first floor accommodation. Recessed cupboard with slatted shelving. Loft hatch.
BEDROOM ONE4.60m x 4.55m max dimensions incl wardrobes (15'1
Suspended bay window with fitted blinds to the front elevation. Range of built-in wardrobes.
ENSUITE SHOWER ROOM2.34m x 1.68m (7'8 x 5'6)
Comprising an enclosed double shower with a sliding glass screen, wc and basin. Storage cabinet. Chrome towel rail/radiator. Obscured window to the side elevation.
BEDROOM TWO3.38m x 3.25m (11'1 x 10'8)
Window with fitted blind to the front elevation.
BEDROOM THREE4.06m x 2.34m (13'4 x 7'8)
Window with fitted blind to the rear elevation. Built-in wardrobe.
BEDROOM FOUR3.05m x 2.36m (10' x 7'9)
Window with fitted blind to the rear elevation.
FAMILY BATHROOM2.03m x 1.96m (6'8 x 6'5)
Comprising a bath with a shower system over and a glass screen, wc with a push button flush and a basin set into a cabinet providing storage. Chrome towel rail/radiator. Wall-mounted cabinet with mirror. Waterproof paneling to the walls. Obscured window to the rear elevation.
OUTSIDE
To the front and partly to the side, there is a patterned concrete driveway providing plentiful off-road parking. A pathway continues through a timber gate to the rear garden. There is an outside tap. The rear garden has been landscaped with areas laid to composite decking and artificial grass. The garden is enclosed by timber fencing and there is also an outdoor covered garden building, which is substantially constructed, with a storage area behind. There is an outside shed.
COUNCIL TAX
Plymouth City Council
Council tax band E
SERVICES
The property is connected to all the mains services: gas, electricity, water and drainage.


