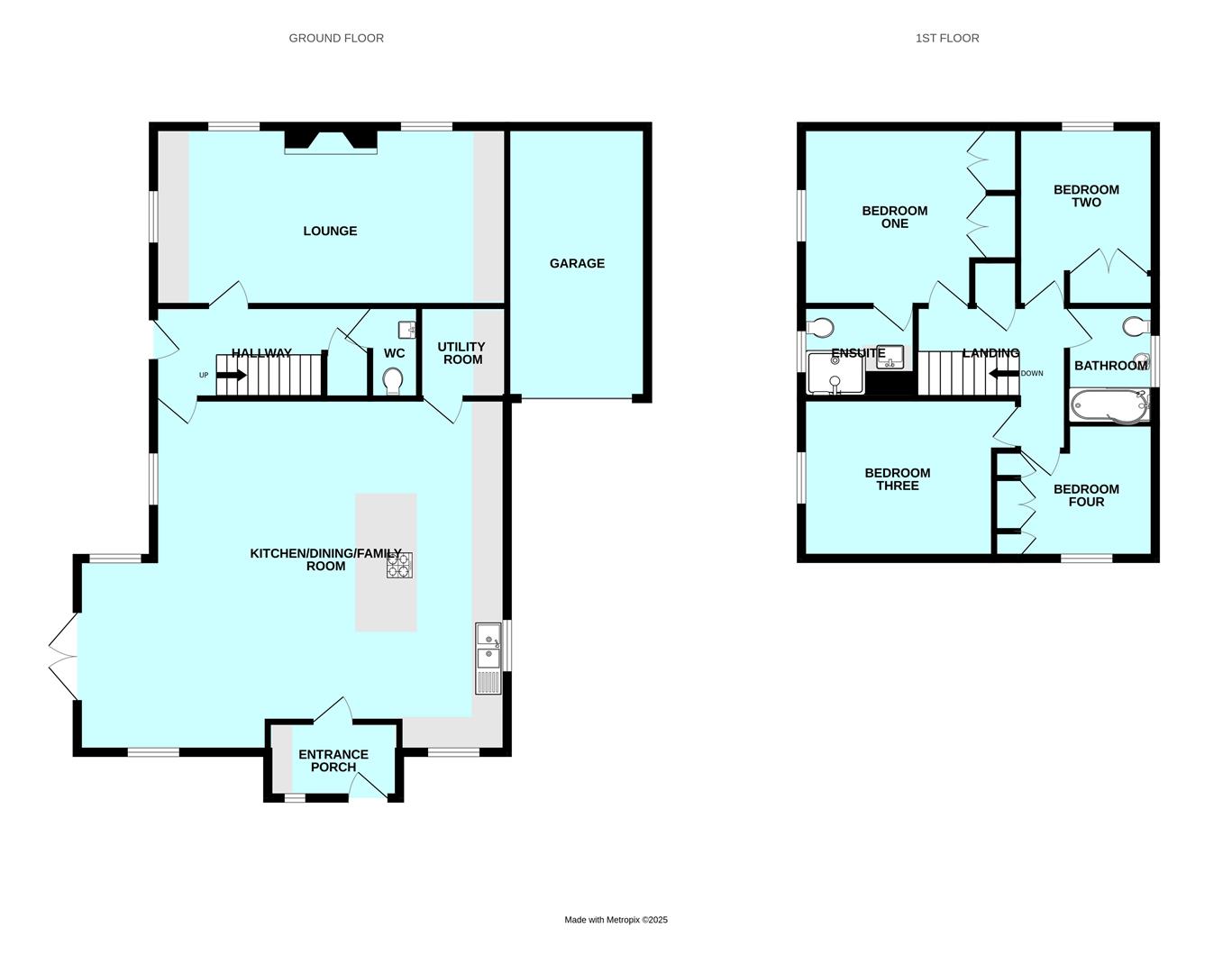
Room Descriptions
BADGER VIEW, PLYMSTOCK, PL9 9GD
SUMMARY
Superbly-presented extended detached family home in a lovely tucked-away position within this popular development. The property overlooks adjacent woodland & has accommodation comprising an entrance porch leading to a stunning open-plan kitchen/dining/family room, separate utility room, lounge, hallway, downstairs cloakroom/wc, 4 bedrooms, master ensuite shower room & family bathroom. Low maintenance landscaped garden. Driveway & garage. Double-glazing & central & under-floor heating.
ACCOMMODATION
Front door opening into the entrance porch.
ENTRANCE PORCH2.34m x 1.47m (7'8 x 4'10)
Coat hooks. Bench storage. Tiled floor. Inset ceiling spotlights. Window with a fitted shutter to the front elevation. Doorway opening into the open-plan kitchen/dining/family room.
OPEN-PLAN KITCHEN/DINING/FAMILY ROOM8.33m x 7.26m (27'4 x 23'10)
An extended room providing a stunning living space with ample areas for seating/dining plus the kitchen. The room features an island with polished hard wood work surface and shelving at one end and a breakfast bar at the other. Belfast-style twin sink set into a quartz work surface. Inset induction hob with a cooker hood above. Built-in appliances include 2 Bosch ovens, full-height fridge and freezer plus a larder cupboard and an integral dishwasher. Bin store. Fitted flooring with under-floor heating. 4 ceiling mounted speakers. Inset ceiling spotlights.4 feature skylights. The room is triple aspect with windows to 3 elevations and French doors leading to outside. Doorway opening into the hallway. Separate doorway leading to the utility room.
UTILITY ROOM1.78m x 1.50m (5'10 x 4'11)
Matching cabinets and work surface. Space for washing machine and tumble-dryer. Inset ceiling spotlights.
HALLWAY4.24m x 1.75m (13'11 x 5'9)
Glazed door overlooking the garden and leading to outside. Staircase ascending to the first floor. Bespoke built-in under-stairs storage. Doorway opening into the lounge. Separate door opening into the downstairs cloakroom/wc.
DOWNSTAIRS CLOAKROOM/WC1.80m x 0.76m (5'11 x 2'6)
Fitted with a wc with a concealed cistern and a push-button flush and wall-mounted basin with wall-mounted taps. Cupboard housing the consumer unit. Tiled floor. Matching tiled surround and splash-back. Inset ceiling spotlights.
LOUNGE6.86m x 3.45m (22'6 x 11'4)
A generous open-plan dual aspect lounge with windows with fitted shutters. Chimney breast with wood burner set onto a slate hearth. Built-in book shelving with a window seat at either end.
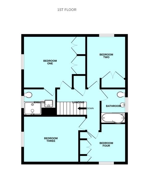
FIRST FLOOR LANDING
Providing access to the first floor accommodation. Loft hatch. Recessed boiler cupboard fitted with a Worcester gas boiler.
BEDROOM ONE3.48m x 3.40m (11'5 x 11'2)
Window with lovely woodland views. 2 recessed double wardrobes. Doorway opening into the ensuite shower room.
ENSUITE SHOWER ROOM2.26m x 1.73m (7'5 x 5'8)
Recently re-fitted with a large walk-in shower with a fixed glass screen, large basin with a cabinet with mirrored doors above and wc. Towel rail/radiator. Inset ceiling spotlights.
BEDROOM TWO3.51m x 3.20m (11'6 x 10'6)
Window with views to the woodland.
BEDROOM THREE3.48m x 2.72m (11'5 x 8'11)
Window with woodland views. Recessed double wardrobe.
BEDROOM FOUR3.25m x 2.69m (10'8 x 8'10)
Window to the front elevation.
FAMILY BATHROOM2.13m x 1.68m (7' x 5'6)
Comprising a bath with a shower system above and a fixed glass screen, basin set into a cabinet and a wc. Towel rail/radiator. Party-tiled walls. Inset ceiling spotlights. Obscured window.
GARAGE5.00m x 2.64m (16'5 x 8'8)
Up-&-over door to the front elevation. Pitched roof providing some over-head storage. Power and lighting.
OUTSIDE
A driveway provides access to the garage plus off-road parking. The garden is landscaped with areas laid to artificial grass and timber decking. There are fabulous views of the woodland.
COUNCIL TAX
Plymouth City Council
Council tax band E
SERVICES
The property is connected to all the mains services: gas, electricity, water and drainage.


