Room Descriptions
WESTON MILL HILL, WESTON MILL, PLYMOUTH, PL5 2AR
SUMMARY
The property was built in the 1960s & has been in the same family ownership since the late 1980s. Maintained over the years & would benefit from a program of upgrading & improvement to be brought up to a modern uniform standard, offering good potential.
LOCATION
Found in Weston Mill with a variety of local services & amenities in the area, including schools, shops & bus services nearby.
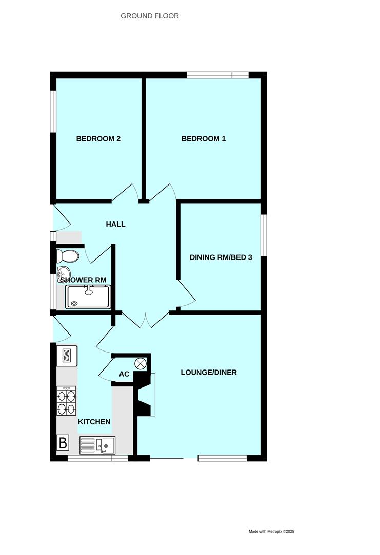
ACCOMMODATION
uPVC double-glazed door into;
HALL3.56m x 3.15m maximum (11'8 x 10'4 maximum)
'L-shaped'. Spacious & can be used as a study area. Cupboard housing the mains gas & electric meters. Access hatch to an insulated loft with lighting & partially boarded.
LOUNGE4.27m x 4.11m maximum (14' x 13'6 maximum)
Good-sized lounge/dining room with windows to the side & rear with sliding patio door overlooking the rear garden. Fireplace with electric heater.
KITCHEN4.11m x 2.31m maximum (13'6 x 7'7 maximum)
A good-sized fitted kitchen. A range of cupboard & drawer storage with integrated appliances which include a Bendix 4 ring hob, Neff dual oven/grill, 1.5 bowl sink unit & Worcester Greenstar gas fired boiler servicing the gas central heating & domestic hot water.
BEDROOM ONE3.56m x 3.40m (11'8 x 11'2)
BEDROOM TWO3.56m x 2.57m (11'8 x 8'5)
BEDROOM THREE/DINING ROOM3.15m x 2.41m (10'4 x 7'11)
Presently laid out as a dining room.
SHOWER ROOM
Comprises an upgraded shower including Mira Jump electrically heated shower, wash hand basin & wc.
EXTERNALLY
Mature gardens to the front. Laid to lawn with borders containing a variety of mature bushes & shrubs. Side access pathway on one side & access on the other side as well. To the rear a generous-sized largely southerly-facing rear garden with wide paved patio next to the property. Steps lead up to a further mature garden area with a variety of specimen bushes, shrubs & plants. The garden having a semi-tropical feel and enjoying a relatively sheltered position from the prevailing winds. About 100 meters away is a single garage in a close by block (blue door 3rd from right).
COUNCIL TAX
Plymouth City Council
Council Tax Band: D
SERVICES PLYMOUTH
The property is connected to all the mains services: gas, electricity, water and drainage.
