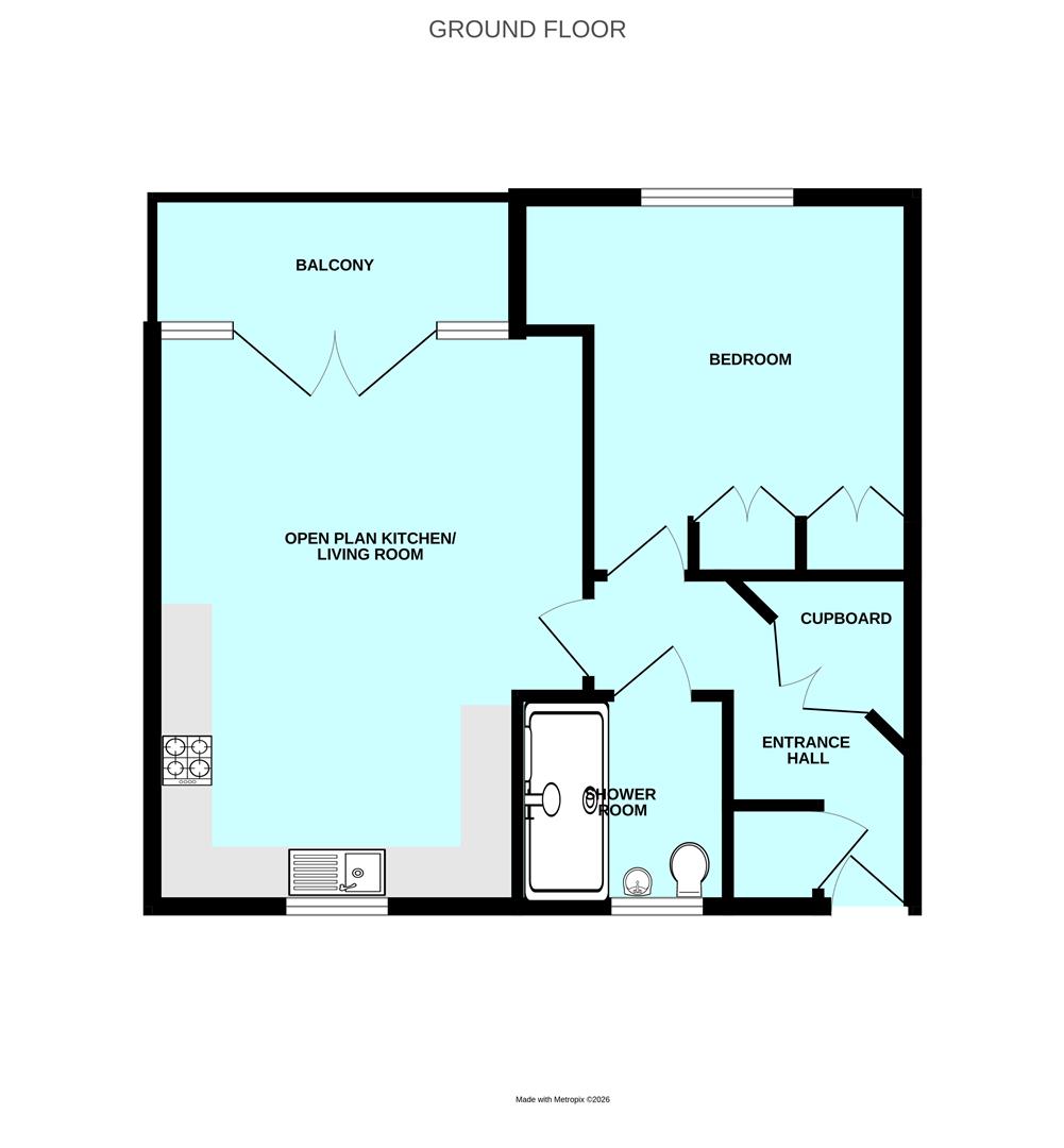
Room Descriptions
MILDREN WAY, DEVONPORT, PLYMOUTH, PL1 4GF
ACCOMMODATION
Entrance into the entrance hall.
ENTRANCE HALL
Doors leading off to the open-plan lounge/kitchen diner, bedroom, shower room, twin doors opening up to the utility cupboard & door to boiler cupboard. Wall mounted phone entry system.
OPEN-PLAN LOUNGE/KITCHEN/DINER4.28m narrowing to 3.27m x 5.66m narrowing to 3.71
In the kitchen area there are matching base & wall-mounted units to include integrated oven, dishwasher & fridge/freezer. Square edge worktops have inset 4 ring induction hob with stainless steel filter hood over. Matching splash-backs. Sink unit with mixer tap. Breakfast bar area. Wood effect LVT flooring. uPVC double-glazed window to the rear. In the lounge/dining area uPVC double-glazed French doors open out to the balcony.
BEDROOM3.65m narrowing to 1.14m x 3.85m narrowing to 3.17
Fitted wardrobes with hanging rail & shelving running along one wall. uPVC double-glazed window to the front.
SHOWER ROOM2.06m x 1.88m (6'9" x 6'2")
Matching suite of walk-in shower with dual shower-heads both rainfall & handheld, close coupled wc, wall mounted wash hand basin. Heated towel rail. Wood effect vinyl flooring. Obscured uPVC double-glazed window to the rear. Wall mounted shaver point. Extractor fan.
OUTSIDE
An allocated car parking space.
TENURE
Leasehold. The 125 year lease began on 01/01/2014 with roughly 113 years remaining. The annual ground rent is £167.50 and the annual service charge is £969.89.
COUNCIL TAX
Plymouth City Council
Council Tax Band: A
SERVICES
The property is connected to all the mains services: gas, electricity, water and drainage.
