Room Descriptions
RADFORD PARK ROAD, PLYMSTOCK, PL9 9DX
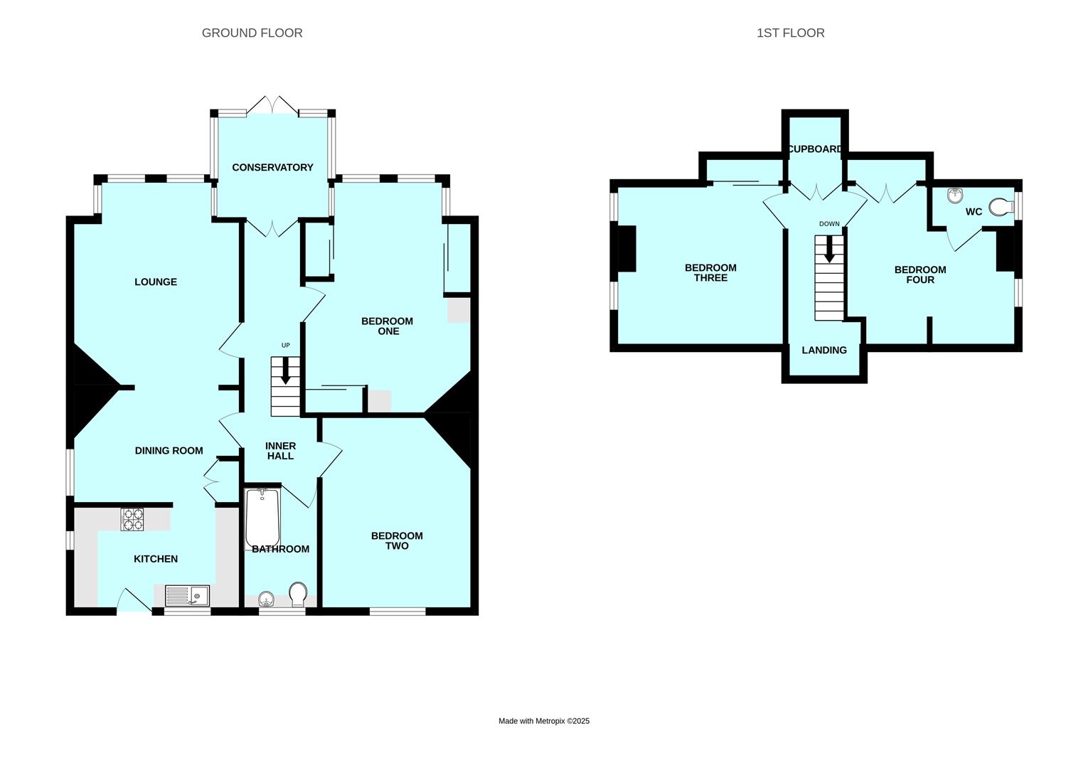
ACCOMMODATION
ENTRANCE PORCH2.01m x 1.24m (6'7 x 4'1)
Doorway opening into the kitchen.
KITCHEN3.66m x 2.31m (12' x 7'7)
Range of base and wall-mounted cabinets with matching fascias, work surfaces and tiled splash-backs. Inset one-&-a-half bowl single drainer sink unit. Space for free-standing cooker, fridge-freezer and washing machine. Wall-mounted Vaillant gas boiler. Over-head cupboard housing the fuse box and electric meter. Windows to 2 elevations. Archway leading through into the lounge/dining room.
LOUNGE/DINING ROOM7.11m x 3.66m (23'4 x 12')
An open-plan room providing ample space for seating and dining. Within the dining area there is a window with a fitted blind to the side elevation. Doorway opening into the inner hallway. The lounge is situated to the with a superb walk-in bay window with fitted blinds with lovely views over the garden towards Radford Park and Staddon Heights. Further door opening into the hall.
INNER HALL5.92m x 1.24m (19'5 x 4'1)
Staircase ascending to the converted roof space. Doors providing access to the remaining ground floor accommodation. Glazed double doors to the rear opening into the conservatory.
CONSERVATORY2.51m x 2.26m (8'3 x 7'5)
Windows to 3 sides. Double-glazed roof. Doorway to the side providing access to outside. Double doors opening onto the decked balcony, providing stunning views over the garden towards Radford Park, towards Staddon Heights and across to Plymouth.
BEDROOM ONE5.16m x 3.66m (16'11 x 12')
Walk-in bay window with fabulous views. Range of built-in wardrobes.
BEDROOM TWO4.29m x 3.38m (14'1 x 11'1)
Currently used as an additional dining room. Window to the front elevation.
BATHROOM2.67m x 1.52m (8'9 x 5')
Comprising a seated bath with an electric shower system over, wc and basin. Partly-tiled walls. Obscured window to the front elevation.
FIRST FLOOR LANDING3.91m x 1.22m (12'10 x 4')
Providing access to the loft rooms. Storage cupboard. Velux skylight window to the rear elevation.
BEDROOM THREE3.66m x 3.33m (12' x 10'11)
2 windows to the side elevation. Eaves storage.
BEDROOM FOUR3.63m x 3.25m (11'11 x 10'8)
Window to the side elevation. Eaves storage. Doorway opening into the ensuite wc.
ENSUITE WC1.57m x 0.91m (5'2 x 3')
Fitted with a wc and a pedestal basin with a tiled splash-back. Obscured window to the side elevation.
GARAGE6.76m x 3.15m max dimensions (22'2 x 10'4 max dime
Up-&-over door to the front elevation. Power and lighting. Storage cupboard and shelving. Windows to 2 elevations. Partly-glazed rear access door opening into the garden.
OUTSIDE
To the front, a driveway provides parking and access to the garage and a covered carport. Also, to the front is an outside tap, a brick-paved parking area plus additional driveway access onto Radford Park Road. A gravelled pathway leads around the side of the bungalow accessing the rear garden. The rear garden, which enjoys a south-west aspect, is mainly laid to lawn together with a variety of mature shrub and flower beds. There is a paved patio area, sub-floor access to the bungalow for storage etc. and built onto the rear is a timber decked balcony with a balustrade providing a fabulous place to sit and enjoy the views. A gateway opens onto Radford Park.


