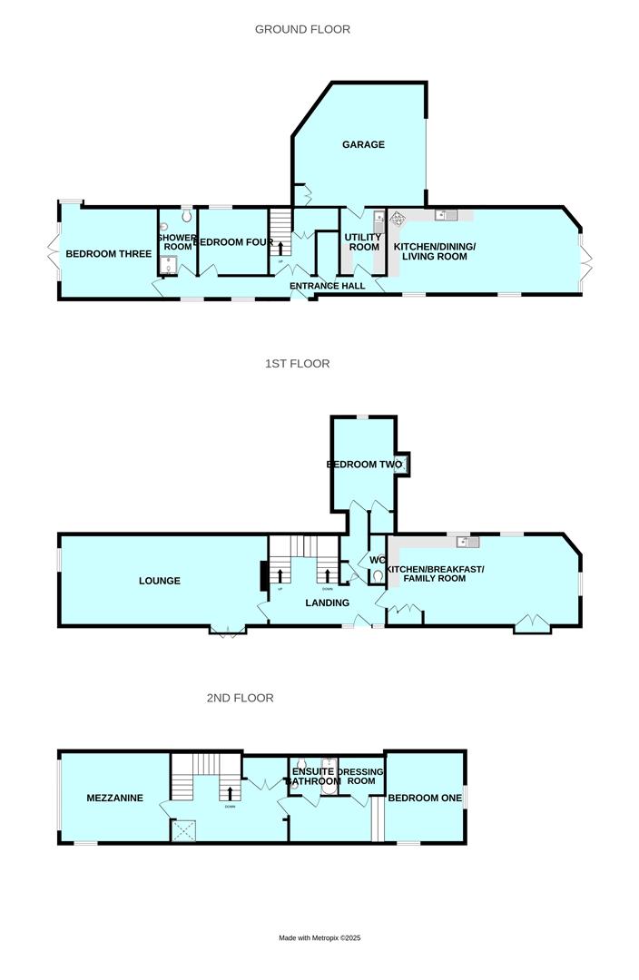
Room Descriptions
THE BARN, LANGDON COURT, PL9 0DY
SUMMARY
The Barn is an exceptional barn conversion set within secluded grounds of approximately 1 acre in a wonderful tucked-away location next to Langdon Court, Down Thomas. The accommodation is extremely spacious & offers flexibility to be used as one large property or a family home plus a self-contained annexe. The accommodation is arranged over 3 storeys & briefly comprises a stunning entrance hall with vaulted ceiling & galleried landing, lounge, open-plan kitchen/breakfast/family room & a mezzanine room above the lounge which is currently used as a study but could be a 5th bedroom. In addition there are 4 further double bedrooms together with a ground floor wc/shower, family shower & an ensuite bathroom to bedroom one. There is also a utility room, integral double garage plus plentiful parking. The property oozes character & has a wonderful atmosphere. Viewing is highly recommended.
ACCOMMODATION
Hard wood glazed front door opening into the entrance hall.
ENTRANCE HALL5.33m x 4.60m into the stairs (17'6 x 15'1 into th
A superb vaulted ceiling with exposed beams. Access to the entrance level accommodation. Staircase. Slate flagged floor. Over-head galleried first floor landing.
LOUNGE8.99m x 4.65m (29'6 x 15'3)
A triple aspect room with feature vaulted ceiling with exposed beams. Stone-built fireplace with wood burning stove set onto a slate hearth. Lovely views over the grounds and countryside.
KITCHEN/BREAKFAST/FAMILY ROOM8.86m x 4.72m (29'1 x 15'6)
Superbly-fitted with hand-crafted oak cabinets contrasted by polished granite work surfaces. Matching island with breakfast bar. Inset stainless-steel one-&-a-half bowl sink with a work-top mounted mixer tap over. Built-in dishwasher. Space for American-style fridge-freezer. Range-style cooker with 7 gas burners plus 2 ovens and a grill. Slate flagged floor. Inset ceiling spotlights. 2 steps descending to the family area. The family area is triple aspect and has lovely views over the grounds and countryside. Ornamental brick-built fireplace. Feature beamed ceiling.
DOWNSTAIRS CLOAKROOM/WC/SHOWER ROOM2.46m x 2.29m (8'1 x 7'6)
Cupboard. Coat hooks. Slate flagged floor. Doorway opening into the wc/shower room. Comprising an enclosed tiled shower fitted with an electric shower system, wall-mounted basin with a cupboard beneath and a wall-mounted mirror over and a wc with a concealed cistern and a push-button flush. Mirrored bathroom cabinet. Extractor. Partly-tiled walls. Doorway opening into bedroom two.
BEDROOM TWO5.08m x 3.07m (16'8 x 10'1)
A dual aspect room with lovely views. Eaves storage cupboards. Built-in wardrobe fitted with a hanging rail.
FIRST FLOOR LANDING5.66m x 2.24m max width (18'7 x 7'4 max width)
A galleried first floor landing providing lovely views over the gardens and countryside towards Langdon Court. Storage cupboards. Doors providing access to the first floor accommodation.
MEZZANINE4.72m x 3.91m (15'6 x 12'10)
A very versatile room which could be used as an additional bedroom if required or a study. Feature vaulted ceiling with exposed beams. Exposed floor boards. Window overlooking the gardens. Internal glazed window overlooking the lounge.
BEDROOM ONE8.84m x 5.26m max width (29' x 17'3 max width)
A stunning principal bedroom with feature vaulted ceiling and exposed beams. Dual aspect with fabulous views over the gardens and countryside towards Langdon Court. Split-level. Walk-in wardrobe with hanging rails and shelving.
ENSUITE BATHROOM2.36m x 1.96m (7'9 x 6'5)
Comprising a bath with a mixer tap shower system over and a shower screen, basin set onto a granite plinth with storage beneath and a wc with a concealed cistern and a push-button flush. Mirror. Towel rail/radiator. Tiled floor. Fully-tiled walls. Extractor. Inset ceiling spotlights.
LOWER HALLWAY10.11m x 1.35m widening to 3.71m into the staircas
Storage cupboard. Slate flagged floor. Windows overlooking the gardens. Doors providing access to the remaining accommodation. Doorway leading to outside.
OPEN-PLAN KITCHEN/DINING/LIVING ROOM9.14m x 4.27m (30' x 14')
A split-level room with a lovely sitting area, which is dual aspect including glazed French doors leading onto the garden. Exposed beams. Feature exposed stonework. The kitchen/dining area is fitted with a range of cabinets, work surfaces and tiled splash-backs. Inset one-&-a-half bowl single drainer sink unit. Built-in oven and grill. Inset electric hob. Integral fridge. Ample space for table and chairs. Feature exposed stonework. Window overlooking the gardens. Tiled floor.
BEDROOM THREE4.37m x 4.34m (14'4 x 14'3)
Dual aspect including glazed French doors with matching windows either side, opening onto the gardens. Feature exposed stonework. Exposed ceiling beams.
BEDROOM FOUR3.02m x 2.92m (9'11 x 9'7)
Feature exposed stonework. Window.
SHOWER ROOM2.79m x 1.65m (9'2 x 5'5)
Comprising a double-sized shower with an electric shower system, pedestal basin and wc. Chrome electric heated towel rail. Partly-tiled walls. Window.
UTILITY ROOM2.95m x 2.26m (9'8 x 7'5)
Work surface. Inset stainless-steel single drainer sink with a tiled splash-back. Storage cupboard. Space for appliances. Further base and wall-mounted storage cupboards with a space for fridge or freezer beneath. Slate flagged floor. glazed door opening into the integral double garage.
DOUBLE GARAGE5.59m x 5.38m (18'4 x 17'8)
Double-sized roller door to the front elevation. Work bench with a vice to the rear. Storage cupboard. Power and lighting.
THE GROUNDS
The Barn is set within grounds of approximately 1 acre, the majority of which are laid to lawn together with an area of woodland and a variety of shrubs. There is plentiful off-road parking and fabulous countryside views.
COUNCIL TAX
South Hams District Council
Council tax band G



