Room Descriptions
FOUNTAINS CRESCENT, PENNYCROSS, PLYMOUTH, PL2 3RE
SUMMARY
A semi-detached house believed to have been built in the late 1940s. Having the benefit of uPVC double-glazing & gas central heating. Requiring refurbishment offering good potential. The accommodation comprises a generous-szied lounge, separate dining room, fitted kitchen, downstairs shower room/wc, 3 bedrooms, bathroom & separate wc. Gardens to the front, side area with outbuildings & rear garden. Vacant & no onward chain.
LOCATION
The property is located on the southerly side of Fountains Crescent in this pleasant mainly residential area.
ACCOMMODATION
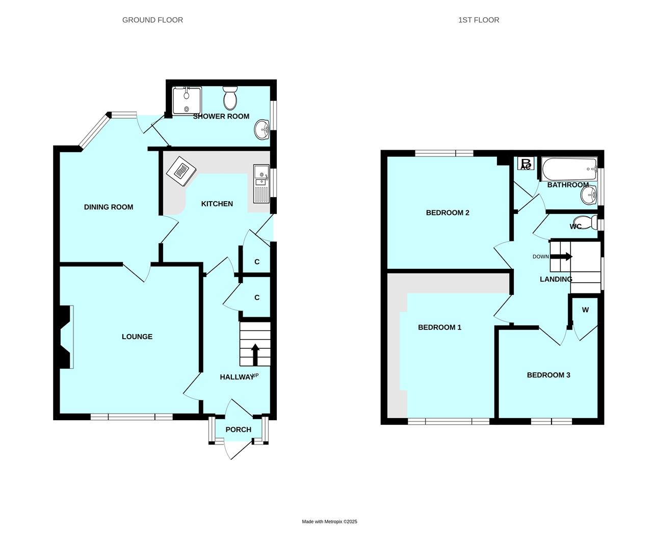
GROUND FLOOR
ENTRANCE PORCH1.30m x 0.64m (4'3 x 2'1)
uPVC double-glazed windows on 3 sides. Door into;
HALL3.81m x 1.80m overall (12'6 x 5'11 overall)
Staircase rises in a straight run to the first floor. Under-stairs storage cupboard.
LOUNGE4.01m x 3.86m (13'2 x 12'8)
Picture window to the front. Feature fireplace. Door into;
DINING ROOM4.32m maximum x 2.72m (14'2 maximum x 8'11)
uPVC double-glazed window & double-glazed door to the rear garden. Door into;
KITCHEN3.33m x 2.92m maximum (10'11 x 9'7 maximum)
Windows to the side. Basic fittings with work surfaces, Leisure stove, 1.5 bowl sink unit & under-stairs storage cupboard.
SHOWER ROOM2.59m x 1.70m (8'6 x 5'7)
Window to the side. Shower, wc & wash hand basin.
FIRST FLOOR
LANDING
Window to the side.
BEDROOM ONE4.04m x 3.15m maximum (13'3 x 10'4 maximum)
Window to the front. Range of fitted wardrobe & cupboard storage along 2 sides.
BEDROOM TWO3.38m x 3.12m (11'1 x 10'3)
Window to the rear.
BEDROOM THREE2.54m x 2.49m (8'4 x 8'2 )
Window to the front.
BATHROOM
Window to the side. Bath & wash hand basin. Airing cupboard houses the Vaillant Eco Tech Pro 28 gas fired boiler servicing the central heating & domestic hot water.
WC1.32m x 0.76m (4'4 x 2'6)
Window to the side. White close coupled wc.
EXTERNALLY
Gardens to the front, side & rear. Three outbuildings including store, outside wc & garden store, brick built.
COUNCIL TAX
Plymouth City Council
Council Tax Band: A
SERVICES PLYMOUTH
The property is connected to all the mains services: gas, electricity, water and drainage.


