Room Descriptions
NURSERY CLOSE, TAMERTON FOLIOT, PLYMOUTH, PL5 4QG
GUIDE PRICE £635,000 - £650,000
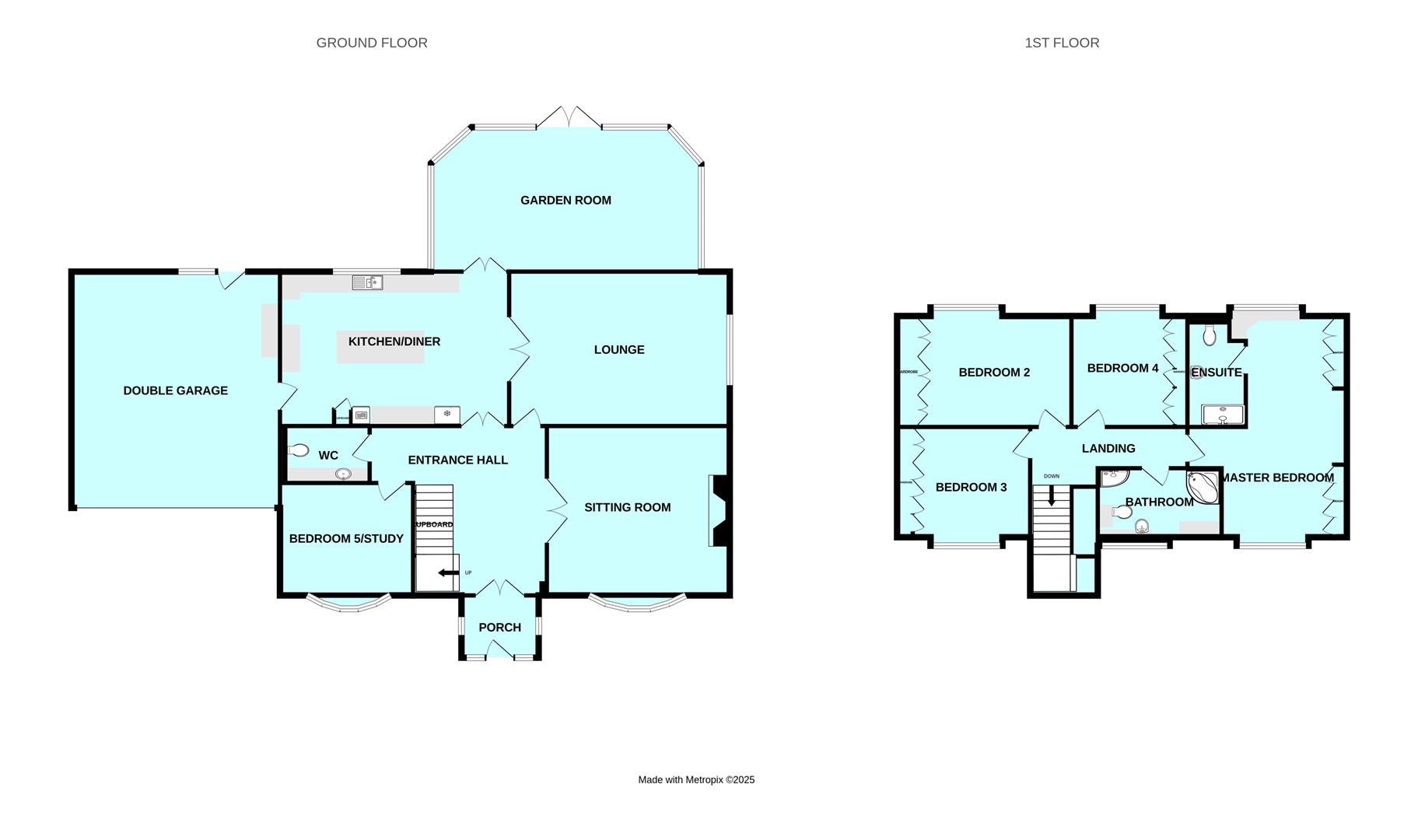
ACCOMMODATION
Entrance via a uPVC obscured double-glazed door with obscured double-glazed panels either side opens into the vestibule.
VESTIBULE2.16 x 1.73 (7'1" x 5'8")
Dual aspect with uPVC double-glazed window to both sides. Grey wood effect laminate wood flooring. Twin wooden doors with glazed panels opens into the entrance hall.
ENTRANCE HALL4.99 x 4.75 (16'4" x 15'7")
Staircase rising to the first floor landing. Ceiling spotlights. Covings. Doors leading to the sitting room & lounge. Twin wooden doors with glazed panels opens into the kitchen/diner. Door to the cloakroom, study & under-stairs storage cupboard.
CLOAKROOM2.26 x 1.44 (7'4" x 4'8")
Matching suite of close coupled wc with hidden cistern. Wash hand basin inset into a roll edge worktop with high gloss vanity storage cupboards below. Chrome heated towel rail. Tiled walls & floor. Wall mounted mirror. Ceiling spotlights. Extractor fan.
STUDY3.69 x 3.18 (12'1" x 10'5")
Ceiling spotlights. Covings. Curved uPVC double-glazed window to the front with deep sill.
SITTING ROOM5.2 x 4.75 (17'0" x 15'7")
Covings. Ceiling spotlights. Curved uPVC bay window to the front with deep sill.
LOUNGE6.21 x 4.31 (20'4" x 14'1")
Covings. Ceiling spotlights. uPVC double-glazed window to the side. Twin wooden doors with glazed panels open into the kitchen/diner.
KITCHEN/DINER6.61 x 4.34 (21'8" x 14'2")
Attractive matching base & wall mounted units to include a central island with breakfast bar. Fitted Rangemaster 5 ring hob, with Rangemaster hood over, fitted Neff oven, integrated fridge/freezer & integrated dishwasher. Roll edge worktops have inset mixer tap with single drainer & 3 pop up charger points. Tiled splash-back. Ample space for a dining table. Tiled floor. Tiled walls. Covings. Ceiling spotlights. Contemporary upright radiator. uPVC double-glazed window to the rear overlooking the garden. Twin wooden doors with glazed panels opens into the garden room. uPVC double-glazed door opens into the double garage.
GARDEN ROOM7.33 x 3.69 (24'0" x 12'1")
Wall mounted fire. uPVC double-glazed window to the side & rear. uPVC double-glazed French doors with fitted blinds open to the rear garden. Covings. Ceiling spotlights. Grey wood effect laminate flooring.
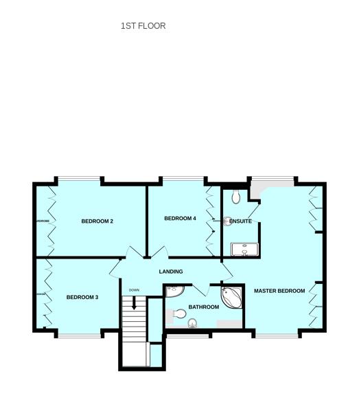
FIRST FLOOR LANDING
Ceiling spotlights. Access hatch to roof void. Doors leading to bedrooms & bathroom.
BEDROOM ONE6.91 x 3.59 plus door access (22'8" x 11'9" plus d
To include an array of fitted bedroom furniture with wardrobes, chest of drawers, overhead storage units & vanity desk with twin chest of drawers. Dual aspect with uPVC double-glazed window to the front & rear. Door into the en-suite.
EN-SUITE2.9 x 1.62 (9'6" x 5'3")
Matching suite of fitted shower cubical with twin shower heads both rainfall & handheld. Close coupled wc with hidden cistern. Wall mounted wash hand basin. Chrome heated towel rail. Ceiling spotlights. Extractor fan. Tiled walls & floor.
BEDROOM TWO4.83 x 3.41 maximum (15'10" x 11'2" maximum)
Fitted wardrobes running along one wall. Bedside cabinets. Vanity unit. Chest of drawers. uPVC double-glazed window to the rear. Ceiling spotlights.
BEDROOM THREE3.38 x 3.04 (11'1" x 9'11")
Fitted wardrobes. Vanity unit. Chest of drawers. Ceiling spotlights. uPVC double-glazed window to the front.
BEDROOM FOUR3.41 x 2.62 (11'2" x 8'7")
Fitted wardrobes. Chest of drawers. uPVC double-glazed window to the rear. Ceiling spotlights.
BATHROOM3.48 x 1.97 (11'5" x 6'5")
Matching suite of corner bath, separate shower cubicle with multi-jet system, close coupled wc & wash hand basin inset into high gloss vanity storage cupboards below. Chrome heated towel rail. Tiled walls & floor. Ceiling spotlights. Obscured uPVC double-glazed window to the front.
DOUBLE GARAGE6.61 x 5.86 (21'8" x 19'2")
Electric up & over door. Wall mounted boiler. uPVC double-glazed window to the rear. uPVC double-glazed door opens to the rear garden. Space & plumbing for a washing machine.
OUTSIDE
The property is approached via twin electric wrought iron gates which leads to a large stone chipped parking area, allowing off-road parking for 5/6 vehicles. To one side is a paved area which leads to the front door. To the other side are raised flower beds with paved patio to the side & rear. Two greenhouses. Raised flower bed runs alongside the rear wall. To the side the main garden which is laid to lawn, a vegetable patch area with 6 raised planters.
COUNCIL TAX
Plymouth City Council
Council Tax Band: E
SERVICES PLYMOUTH
The property is connected to all the mains services: gas, electricity, water and drainage.


