Room Descriptions
MILLBAY ROAD, PLYMOUTH, PL1 3FL
ACCOMMODATION

Front door opening into the entrance hall.

ENTRANCE HALL6.55m x 1.19m (21'6 x 3'11)

Providing access to the ground floor accommodation. Staircase ascending to the top floor. Recessed cupboard with shelf, also housing the consumer unit, electric meter and stopcock.

BEDROOM FOUR4.37m x 2.18m max width (14'4 x 7'2 max width)

Currently used as study. Window with a fitted blind to front elevation.

BEDROOM THREE3.40m x 3.38m (11'2 x 11'1)

Full-height window and glass door to the rear opening onto the paved courtyard.

DOWNSTAIRS CLOAKROOM/WC2.01m x 0.99m (6'7 x 3'3)

Fitted with a wc and a wall-mounted basin with a tiled splash-back. Over-head cupboards.

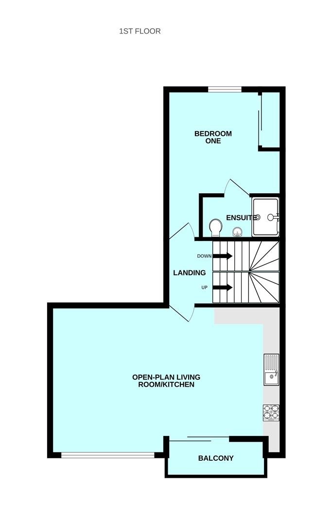
FIRST FLOOR LANDING

Stairs ascending to the next level. Doors to the first floor accommodation.

OPEN-PLAN LIVING ROOM/KITCHEN7.06m x 4.06m (23'2 x 13'4)

A superb open-plan room taking full advantage of the property's position. Ample space for seating and dining. Sliding double-glazed doors with fitted shutters leading onto a glass balcony. Within the lounge area there is a feature full-height window with fitted shutters providing incredible views. The kitchen area is fitted with cabinets with matching fascias, work surfaces and quartz-style stone splash-backs. Inset 4-burner gas hob with a stainless-steel splash-back and a cooker hood above. Separate built-in oven and grill. Separate microwave. Integral fridge and freezer. Integral dishwasher.

BEDROOM ONE4.67m x 3.63m max dimensions (15'4 x 11'11 max dim

Built-in wardrobe with sliding doors. Cupboards above the wardrobe. Obscured window to the rear elevation. Doorway opening into the ensuite shower room.

ENSUITE SHOWER ROOM2.24m x 1.17m (7'4 x 3'10)

Comprising an enclosed shower with waterproof boarding and a built-in shower system, pedestal basin and wc with a matching boarded surround. Mirrored bathroom cabinet. Chrome towel rail/radiator.

SECOND FLOOR LANDING

Stairs leading to the top level. Doors to the second floor accommodation.

BEDROOM TWO3.38m x 2.77m (11'1 x 9'1)

Obscured window to the rear elevation.

SHOWER ROOM2.21m x 1.50m (7'3 x 4'11)

Fitted with a large walk-in shower with waterproof panelling to the walls, a fixed glass screen and a built-in shower system, pedestal basin and wc with matching panelled surround. Large wall-mounted mirror with lighting above. Chrome towel rail/radiator.

TOP FLOOR LANDING

Providing access to the utility room. Glazed door with a full-height window to the side opening onto the roof terrace.

UTILITY ROOM3.35m x 1.47m (11' x 4'10)

Stainless-steel single drainer sink unit with a cupboard beneath. Space and plumbing for washing machine. Hot water cylinder. Over-head slatted shelving. Wall-mounted gas boiler.

ROOF TERRACE4.06m x 3.56m (13'4 x 11'8)

Glass balustrade. Providing incredible views over the marina and Plymouth Sound, towards Drakes Island, the Breakwater and Staddon Heights golf club.

COUNCIL TAX

Plymouth City Council
Council tax band D

AGENT'S NOTE

The property is leasehold with 232 years remaining on a 250 year lease. There is an annual service charge of £2100. No ground rent.