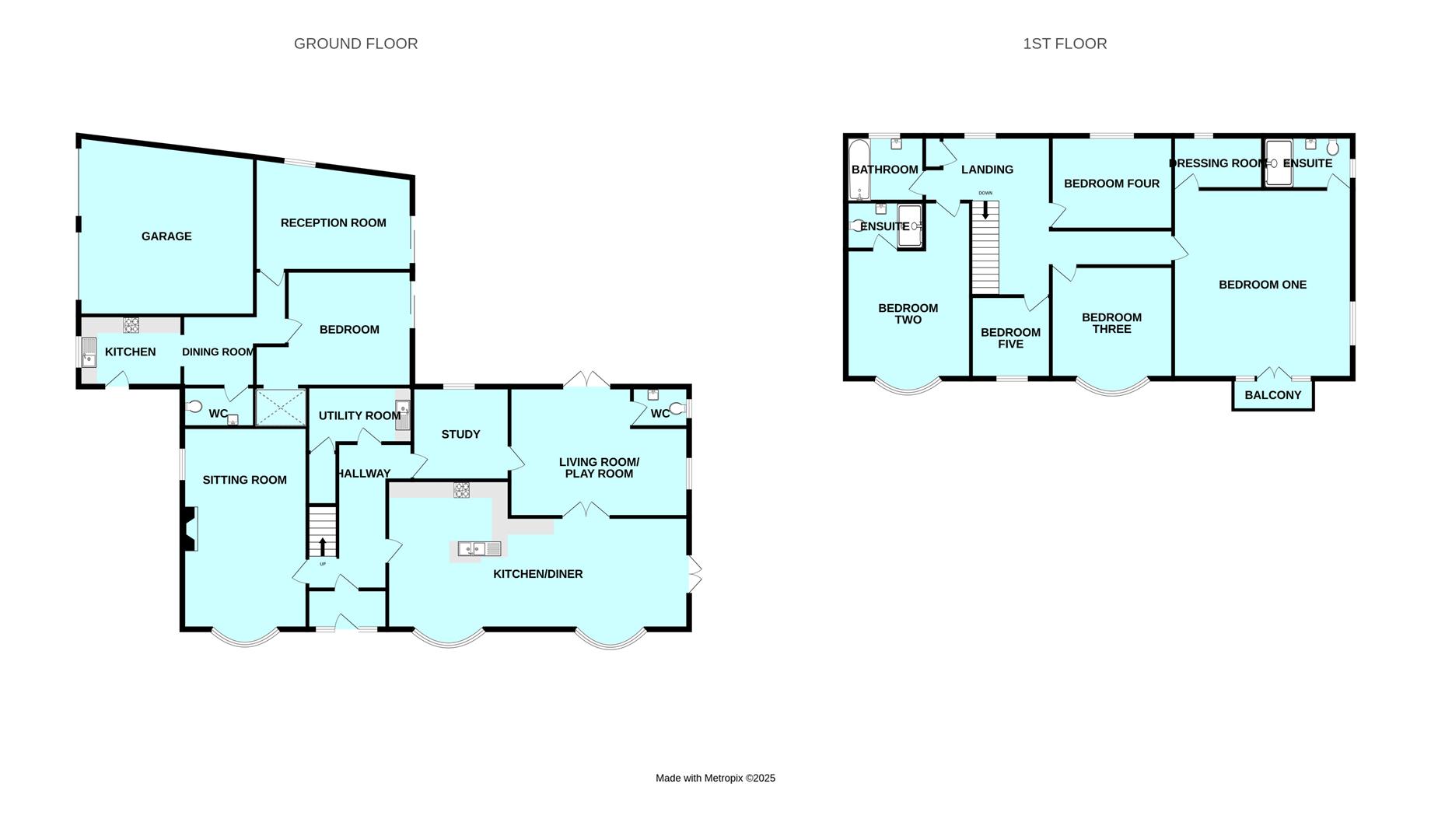
Room Descriptions
HIGHLANDS, BRIXTON, PL8 2AX
SUMMARY
Located within the South Hams, close to Brixton, is this imposing detached residence offering flexible accommodation and income potential. It is currently arranged as a 5-bedroom detached property with 3 separate reception room, lovely-sized feature kitchen/dining room, utility, master ensuite, additional ensuite, family bathroom and a 1-bedroom annexe. There is ample off-road parking & a double garage. The property is set within mature grounds offering a lovely position with countryside views.
ACCOMMODATION
Access to the property is gained via the part uPVC obscured double-glazed entrance door with double-glazed side panels leading into the entrance porch.
ENTRANCE PORCH
Step rising into the hall through the wooden part glazed leaded door with matching side panels. Quarry-tiled floor.
HALL4.32m x 2.46m (14'2 x 8'1)
Stairs rising to the first floor accommodation. Doors providing access to the ground floor accommodation.
UTILITY ROOM3.35m x 1.75m (11' x 5'9)
Matching eye-level and base units with work surface. Inset sink unit with mixer tap. Space and plumbing for washing machine. Ample storage. Access to the under-stairs storage cupboard.
SITTING ROOM6.48m into bay x 3.96m (21'3 into bay x 13')
A dual aspect room with a double-glazed window to the side elevation and a double-glazed curved bay window to the front elevation with an outlook across local fields and countryside. Inset feature 'Living Flame' fire.
KITCHEN/DINING ROOM10.06m x 4.62m into bay (33' x 15'2 into bay)
Within the kitchen area are a series matching eye-level and base units with solid stone work surfaces and matching up-stands. Inset stainless-steel one-&-a-half bowl single drainer sink unit with a mixer tap. Built-in appliances include a 4-ring induction hob with a canopied extractor hood above, adjacent electric double oven and grill, built-in microwave, integrated fridge, freezer and dishwasher. Vertical radiator. Curved double-glazed bay window to the front elevation with lovely countryside views. Opening leading into the dining area. The dining area is dual aspect, providing a lovely light open space, with a further double-glazed bay window and French-style double doors opening out to a decked area. Solid wood flooring.
LIVING ROOM5.72m x 4.11m (18'9 x 13'6)
A dual aspect room with a double-glazed window to the side elevation and French-style double doors leading out to a rear decked area. Solid wood flooring. Doorway leading to a separate cloakroom/wc. Connecting door leading into the study.
DOWNSTAIRS CLOAKROOM/WC1.96m x 1.30m (6'5 x 4'3)
Fitted with a low level wc and a pedestal wash basin. Solid wood flooring. Half-height panelling to the walls. Obscured double-glazed window to the side elevation.
STUDY3.10m x 3.07m (10'2 x 10'1)
Double-glazed window to the rear elevation. Doorway returning to the hall.
FIRST FLOOR LANDING4.62m x 3.53m (15'2 x 11'7)
Providing access to the first floor accommodation. Built-in cupboard with shelving. Loft hatch with a folding wooden loft ladder. Double-glazed window to the rear elevation.
BEDROOM ONE5.59m x 5.31m (18'4 x 17'5)
An impressive-sized room with a full-length double-glazed window to the side elevation. French-style double doors with double-glazed slide panels to the front elevation leading onto a small wooden balcony enjoying panoramic countryside views. Doorway leading to the dressing room.
DRESSING ROOM2.74m x 1.73m (9' x 5'8)
Range of shelving and storage. Obscured double-glazed window to the rear elevation.
ENSUITE SHOWER ROOM2.69m x 1.70m (8'10 x 5'7)
Comprising a good-sized walk-in shower cubicle with a shower unit with a spray attachment with a rainfall shower head, a pedestal wash basin and a low level toilet. Vertical towel rail/radiator. Tiled floor. Fully-tiled walls. Obscured double-glazed window to the side elevation.
BEDROOM TWO
Curved double-glazed window to the front elevation. Doorway opening into the ensuite.
ENSUITE SHOWER ROOM
Comprising a shower cubicle, sink unit and a low level toilet.
BEDROOM THREE3.96m x 3.43m into bay (13' x 11'3 into bay)
Double-glazed bay window to the front elevation with lovely views over the local countryside.
BEDROOM FOUR3.99m x 3.07m (13'1 x 10'1)
Double-glazed window to the rear elevation with a lovely outlook onto the local fields.
BEDROOM FIVE3.99m x 3.07m (13'1 x 10'1)
Double-glazed window to the front elevation with lovely views over the local countryside.
BATHROOM2.84m x 1.80m (9'4 x 5'11)
White suite comprising a 'P-shaped' bath with a mixer tap, spray attachment and curved shower screen, low level toilet with a boxed-in cistern and a sink unit with a vanity area and storage cupboards beneath. Tiled floor. Fully-tiled walls. Double-glazed window to the rear elevation.
LITTLE HIGHLANDS ANNEXE
Located to the side of the main residence is an adjoining annexe which has accommodation comprising one reception area, kitchen leading to a dining area, a double bedroom and a wc.
AGENT'S NOTE
Please note that at the time of listing that the current vendor enjoys an income from a tenant within the annexe and one room with the main residence.
OUTSIDE
Approached via a metal gate, the drive opens up to a good-sized parking area leading to the double garage. The driveway sweeps around to the front of the building, where there is further off-road parking. The grounds consist of a lawned triangular section of garden located at the far side and is enclosed by mature trees and steps lead up to a good-sized decking area to the side and rear of the property providing a seclusion and privacy.
DOUBLE GARAGE
COUNCIL TAX
South Hams District Council
Council tax band F for the main house and council tax band A for the annexe.
SERVICES
The property is connected to mains services: gas, electricity and water. Private drainage.
LOCATION
Located within the South Hams, close to Brixton, is this imposing detached residence offering flexible accommodation and income potential. It is currently arranged as a 5-bedroom detached property with 3 separate reception room, lovely-sized feature kitchen/dining room, utility, master ensuite, additional ensuite, family bathroom and a 1-bedroom annexe. There is ample off-road parking & a double garage. The property is set within mature grounds offering a lovely position with countryside views.


