Room Descriptions
DUNSTONE VIEW, PLYMSTOCK, PL9 8TW
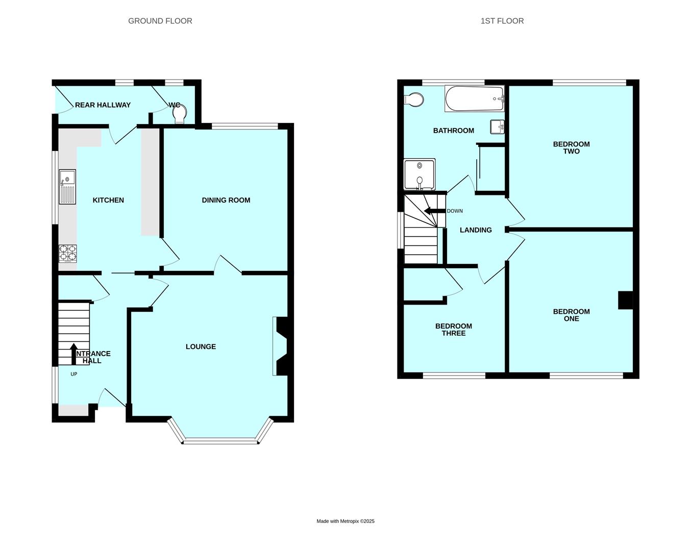
ACCOMMODATION
Front door opening into the entrance hall.
ENTRANCE HALL3.68m x 2.03m (12'1 x 6'8)
Alcove with shelving and storage. Staircase ascending to the first floor. Under-stairs cupboard housing the electric meter and fuse box. Doors providing access to the ground floor accommodation.
LOUNGE4.62m x 4.34m (15'2 x 14'3)
Bay window with fitted blinds to the front elevation. Chimney breast with fireplace. Hard wood parquet floor. Doorway opening into the dining room.
DINING ROOM3.99m x 3.51m (13'1 x 11'6)
Window to the rear elevation overlooking the garden. Further doorway opening into the kitchen.
KITCHEN4.01m x 2.87m (13'2 x 9'5)
Range of cabinets with matching fascias, work surfaces and tiled splash-backs. Stainless-steel single drainer sink unit. Hob with a cooker hood above. Oven. Integral fridge and freezer. Pull-out larder store. Space and plumbing for washing machine. Glazed display cabinets. Window with fitted blind to the side elevation. Doorway opening into the rear hallway.
REAR HALLWAY2.49m x 1.17m (8'2 x 3'10)
Coat hooks. Obscured window to the rear. Doorway to the downstairs cloakroom/wc. Doorway to outside.
DOWNSTAIRS CLOAKROOM/WC1.22m x 1.17m (4' x 3'10)
Fitted with a low level flush cistern. Partly-tiled walls. Obscured window to the rear elevation.
FIRST FLOOR LANDING1.88m x 1.70m (6'2 x 5'7)
Providing access to the first floor accommodation Window with fitted blind to the side elevation. Loft hatch.
BEDROOM ONE4.01m x 3.53m (13'2 x 11'7)
Window with a fitted blind to the front elevation.
BEDROOM TWO4.01m x 3.56m (13'2 x 11'8)
Window to the rear elevation with lovely views over the garden across to the city centre and Cornwall beyond and sweeping around to Dartmoor.
BEDROOM THREE3.05m x 2.87m (10' x 9'5)
Window to the front elevation. Wall-mounted shelving. Over-stairs storage cupboard with shelving.
BATHROOM3.00m x 2.84m (9'10 x 9'4)
Comprising a bath, separate tiled shower, wc and pedestal basin with a mirror over. Airing cupboard with shelving, also housing the hot water cylinder. Mirrored bathroom cabinet. Obscured window with a fitted blind to the rear elevation,
GARAGE4.95m x 2.72m (16'3 x 8'11)
Up-&-over door to the front elevation. Obscured window to the side elevation.
SHED2.49m x 1.09m (8'2 x 3'7)
Masonry garden tool store, adjacent to the garage. Access door. Obscured window.
OUTSIDE
The property is approached via a long driveway providing off-road parking and access to the garage. The gardens to the front and rear are mainly laid to lawn with bordering shrubs. The front garden has a pond whilst the rear garden has a patio area. Storage bunker beneath the rear steps.
COUNCIL TAX
Plymouth City Council
Council tax band D
SERVICES
The property is connected to all the mains services: gas, electricity, water and drainage.
AGENT'S NOTE
Available to the market for the first time since the owners purchased from new.


