Room Descriptions
PANDORA GROVE, SHERFORD, PL9 8LZ
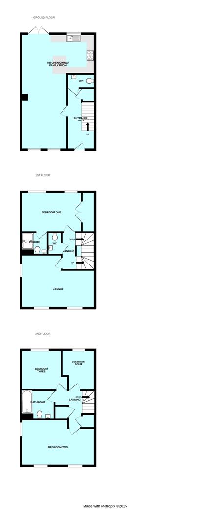
ACCOMMODATION
Front door opening into the hall.
ENTRANCE HALL4.11m x 1.85m (13'6 x 6'1)
Providing access to the accommodation. Staircase ascending to the first floor. Under-stairs cupboard. Fitted flooring. Feature high ceilings.
DOWNSTAIRS CLOAKROOM/WC1.85m x 1.07m (6'1 x 3'6)
Fitted with a wc and a pedestal basin with a tiled splash-back. Fitted flooring.
OPEN-PLAN KITCHEN/DINING/FAMILY ROOM8.28m x 5.31m at widest points (27'2 x 17'5 at wid
A superb open-plan room running from front to rear with windows to the front and rear elevations together with French doors leading onto the landscaped south-westerly facing garden. Ample space for seating and dining. Fitted kitchen with matching cabinets and work surfaces, including a breakfast bar. Inset stainless-steel one-&-a-half bowl single drainer sink unit. Stainless-steel 5-burner gas hob with a splash-back and cooker hood above. Built-in double oven and grill. Integral fridge and freezer. Integral washing machine. Fitted flooring. Feature high ceilings.
FIRST FLOOR LANDING
Providing access to the accommodation. Staircase continuing to the top floor.
LOUNGE5.28m x 3.61m at widest point (17'4 x 11'10 at wid
A dual aspect room with windows to the front and side elevations. 2 Juliette-style balconies to the front elevation with lovely views over the lake towards the surrounding countryside.
BEDROOM ONE5.31m to wardrobe rear x 2.90m (17'5 to wardrobe r
2 windows to the rear elevation. Built-in wardrobes. Doorway opening into the ensuite shower room.
ENSUITE SHOWER ROOM1.96m x 1.55m (6'5 x 5'1)
Comprising an enclosed shower, pedestal basin with a tiled splash-back and wc. Chrome towel rail/radiator.
FIRST FLOOR WC1.57m x 0.81m (5'2 x 2'8)
Fitted with a wc and a pedestal basin with a tiled splash-back.
TOP FLOOR LANDING
Providing access to the top floor accommodation. Loft hatch. Recessed storage cupboard. Over-stairs storage cupboard.
BEDROOM TWO5.31m x 3.23m (17'5 x 10'7)
A generous dual aspect double bedroom with lovely views over the lake towards the surrounding countryside.
BEDROOM THREE2.90m x 2.77m (9'6 x 9'1)
Window to the rear elevation.
BEDROOM FOUR2.90m x 2.44m (9'6 x 8')
Window to the rear elevation.
FAMILY BATHROOM2.13m x 1.96m (7' x 6'5)
Comprising a bath with a shower system over and a glass screen, pedestal basin with a tiled splash-back and wc. Partly-tiled walls.
GARAGE5.99m x 2.97m (19'8 x 9'9)
Up-&-over style door to the front elevation. Pitched roof.
OUTSIDE
The garden enjoys a south-westerly aspect and has been landscaped with areas laid to patio and artificial grass, retained shrub bed.. There is a pergola with seating beneath, a timber shed, outside tap, outside power points and outside lighting. A rear access gate leading to the garage with parking in front.
COUNCIL TAX
South Hams District Council
Council tax band E
SERVICES
The property is connected to all the mains services: gas, electricity, water and drainage.




