Room Descriptions
CAMPION VIEW, WOOLWELL, PL6 7TA
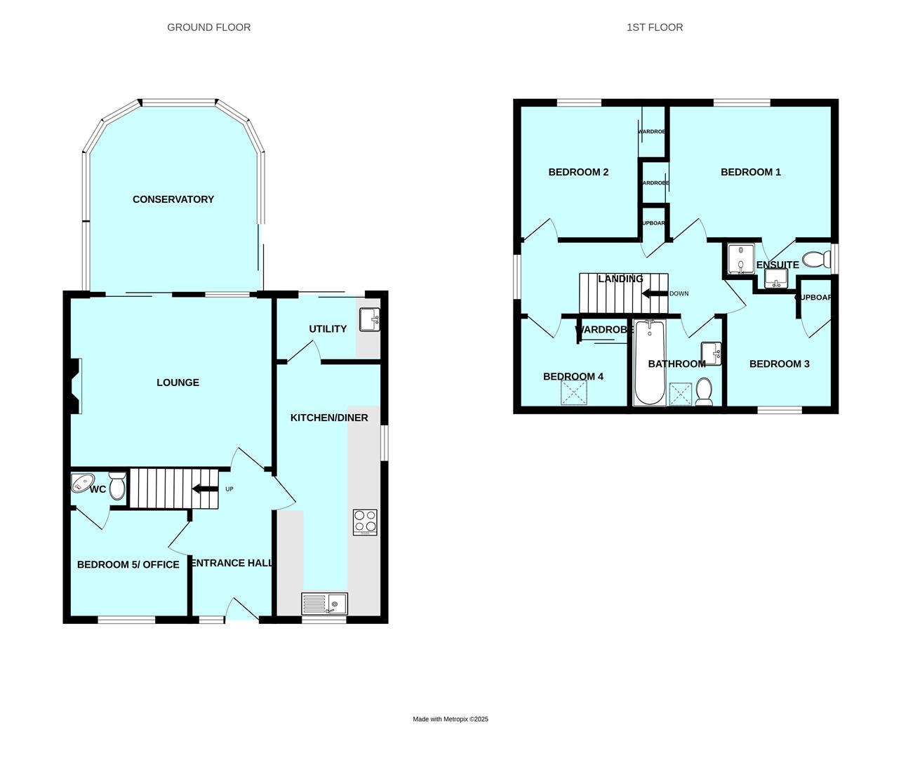
ACCOMMODATION
Access to the property is gained via a covered entrance with a uPVC part double-glazed entrance door leading into the entrance hall.
ENTRANCE HALL3.35 x 1.82 (10'11" x 5'11")
Providing access to the ground floor accommodation. Stairs rising to the first floor.
OFFICE/BEDROOM FIVE3.70 x 2.34 (12'1" x 7'8")
Double-glazed window to the front elevation. Doorway leading to the ensuite wc.
ENSUITE WC1.88 x 1.09 (6'2" x 3'6")
Fitted with a low level toilet and a corner sink unit. Window to the side elevation.
LOUNGE4.69 x 3.95 (15'4" x 12'11")
Inset 'Living Flame' gas fire. Double-glazed window to the rear elevation. Sliding doors leading to the conservatory.
CONSERVATORY
uPVC double-glazed windows and doors providing a pleasant outlook and access onto the rear garden.
KITCHEN/DINER5.83 x 2.49 (19'1" x 8'2")
Range of matching white high gloss eye-level and base units with work surfaces. Inset one-&-a-half bowl sink unit. Built-in 4-ring electric hob. Under-counter fridge. Under-counter freezer. Integrated dishwasher. Cupboard concealing the gas boiler. Double-glazed windows to the front and side elevations. Doorway leading to the utility.
UTILITY1.52 x 2.49 (4'11" x 8'2")
Work surface with sink unit. Space and plumbing for washing machine. Double-glazed patio doors leading out to the rear.
FIRST FLOOR LANDING
Providing access to the first floor accommodation. Built-in storage cupboard. Double-glazed window to the side elevation.
BEDROOM ONE3.76 x 3.08 (12'4" x 10'1")
Double-glazed window. Fitted wardrobe. Doorway leading to the ensuite shower room.
ENSUITE SHOWER ROOM2.77 x 1.68 at widest points (9'1" x 5'6" at wides
A newly-fitted ensuite comprising a corner shower cubicle, sink unit and a low level toilet. Vertical towel rail/radiator. Obscured double-glazed window to the side elevation.
BEDROOM TWO2.86 x 3.08 (9'4" x 10'1")
Double-glazed window to the rear elevation. Fitted wardrobe.
BEDROOM THREE2.72 x 2.51 at widest points (8'11" x 8'2" at wide
Double-glazed window to the front elevation. Built-in storage.
BEDROOM FOUR2.33 x 2.54 at a height of 1.5m (7'7" x 8'3" at a
Sloping ceiling to the front elevation. Fitted wardrobe.
BATHROOM2.29 x 1.82 at a height of 1.5m (7'6" x 5'11" at a
Sloping ceiling with a Velux-style window to the front elevation. Comprising a panel, low level toilet and a sink unit.
OUTSIDE
To the front of the property there is off-road parking for 2 vehicles together with a lawned and planted garden with mature shrubs and bushes. A path leads down the side of the property through to the rear garden, which is enclosed and mainly laid to lawn. There is a patio area and space for a timber shed.
COUNCIL TAX
South Hams District Council
Council tax band D
Rental holding deposit
The agent may require a holding deposit equivalent to a week's rent in order to secure the property. This amount would then be deducted from the 1st month's rent.


