Room Descriptions
RANDWICK PARK ROAD, PLYMSTOCK, PL9 7QL
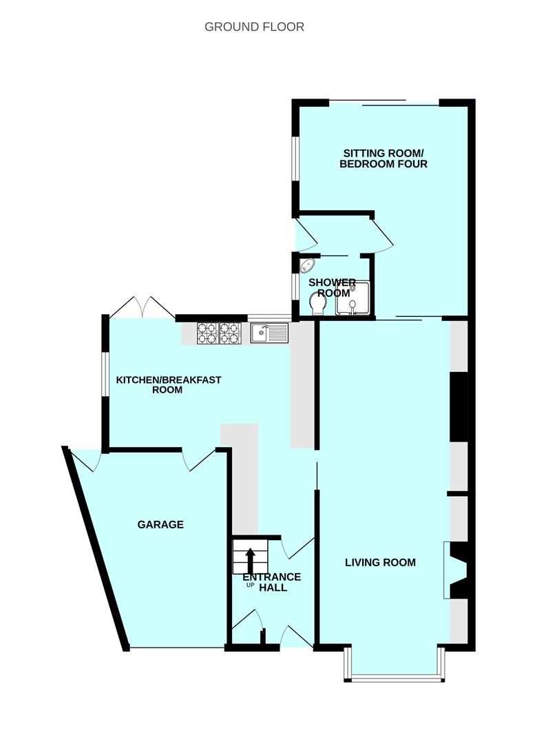
ACCOMMODATION
Front door opening into the entrance hall.
ENTRANCE HALL2.34m x 2.03m (7'8 x 6'8)
Providing access to the accommodation. Staircase leading to the first floor. Built-in cupboard. Additional over-head cupboard housing the electric meter and consumer unit.
LIVING ROOM8.31m x 3.53m (27'3 x 11'7)
Bay window with fitted blinds and a window seat to the front elevation. 2 chimney breasts, one incorporating a brick-built fireplace with a fitted fire. To the rear of the room, there is a built-in dresser to one side of the chimney breast. Sliding aluminium double-glazed doors opening into the sitting room/optional ground floor 4th bedroom.
SITTING ROOM/OPTIONAL BEDROOM FOUR4.85m x 3.96m (15'11 x 13')
A triple aspect room with sliding doors to the rear elevation overlooking the garden. Doorway providing access to a rear hall.
REAR HALL
Doorway to outside. Doorway to the downstairs shower room/wc.
DOWNSTAIRS SHOWER ROOM/WC1.63m x 1.35m (5'4 x 4'5)
Comprising an enclosed shower, corner-style basin and wc. Fully-tiled walls. Obscured window to the side elevation.
KITCHEN/BREAKFAST ROOM5.13m x 5.08m max dimensions, l-shaped room (16'10
An 'L-shaped' kitchen/breakfast room with ample space for table and chairs. The room is dual aspect with windows to the rear and side elevations together with French doors leading to the rear garden. The kitchen area is fitted with a range of matching base and wall-mounted cabinets with work surfaces and tiled splash-backs. Inset one-&-a-half bowl single drainer sink unit. Range-style cooker with a cooker hood above. Integral dishwasher.
LANDING
Providing access to the first floor accommodation. Window with fitted blinds over the stairs to the side elevation. Loft hatch.
BEDROOM ONE4.09m x 3.56m to wardrobe rear (13'5 x 11'8 to war
Window with fitted blinds to the rear elevation providing fantastic views over Plymstock towards Burrow Hill. Range of bedroom furniture including wardrobes, dressing table and bedside cabinets. Airing cupboard fitted with slatted shelving and plumbed with a radiator.
BEDROOM TWO4.06m x 3.43m to wardrobe rear (13'4 x 11'3 to war
A square bay window with fitted blinds to the front elevation with lovely views towards the cricket ground. Fitted furniture including wardrobes and dressing table.
BEDROOM THREE3.05m x 2.03m (10' x 6'8)
Window to the side elevation.
BATHROOM2.03m x 1.70m (6'8 x 5'7)
Comprising a bath, pedestal basin and wc. Wall-mounted mirror. Fully-tiled walls. Obscured window with a fitted blind to the front elevation.
GARAGE5.23m x 3.71m at widest points (17'2 x 12'2 at wid
Up-&-over door to the front elevation. Integral rear access door. Wall-mounted gas boiler. Power and lighting. Doorway providing external access.
OUTSIDE
To the front of the property, a driveway provides off-road parking together with hedging and a small garden laid to lawn with a shrub and flower border. The rear garden is a particular feature of this property and has a southerly aspect, mature planting, lawn, patio and pond.
COUNCIL TAX
Plymouth City Council
Council tax band D


