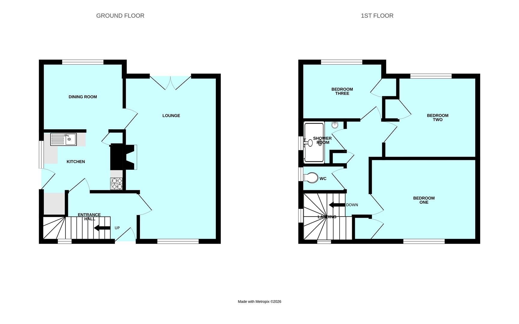
Room Descriptions
ABBOTSBURY WAY, WESTON MILL, PLYMOUTH, PL2 2HS
ACCOMMODATION
Entrance via a uPVC double-glazed door into the entrance hall.
ENTRANCE HALL2.27m x 1.81m (7'5" x 5'11")
Staircase rising to the first floor landing. Doors lead to the kitchen & lounge.
LOUNGE6.26m x 2.87m (20'6" x 9'4")
Dual aspect room with uPVC double-glazed window to the front. uPVC double-glazed doors out to the rear garden. Feature fireplace, wood mantle & surround with inset gas fire (cannot confirm if operational or not). Door into dining room.
DINING ROOM3.02m x 2.43m (9'10" x 7'11" )
uPVC double-glazed window to the rear. Wall mounted old style gas fire (cannot confirm if operational or not). Door into kitchen.
KITCHEN3.01m x 2.23m (9'10" x 7'3")
Matching base & wall mounted units to include fitted cooker. Roll edge laminate work surfaces have inset 4 ring gas hob. Stainless steel sink unit with mixer tap. Tiled splash-back. uPVC double-glazed window to the side. uPVC double-glaze door to the side.
FIRST FLOOR LANDING
Doors leading to the bedrooms, shower room & wc. Obscured uPVC double-glazed window to the front & side. Access hatch to roof void.
BEDROOM ONE3.15m x 3.87m (10'4" x 12'8" )
uPVC double-glazed window to the front. Door to storage cupboard.
BEDROOM TWO3.36m x 3m (11'0" x 9'10")
uPVC double-glazed window to the rear overlooking the garden. Door to storage cupboard.
BEDROOM THREE3.05m x 2.09m (10'0" x 6'10")
uPVC double-glazed window to the rear. Door to fitted storage cupboard.
SHOWER ROOM1.67m x 1.62m (5'5" x 5'3")
Pedestal wash hand basin. Fitted shower cubical with electric shower. Obscured uPVC double-glazed window to the side.
WC1.64m x 0.89m (5'4" x 2'11")
Close coupled wc. Part-tiled walls. Obscured uPVC double-glazed window to the side.
OUTSIDE
The property is approached via a wrought iron gate which gives access to a path, which leads up to the front door. Bordered on both sides by a section of lawn with flower bed & shrub borders. Concrete path leads to a further wrought iron gate, which opens to the side passage. A door to a cellar storage area. The path runs alongside the property towards the rear garden.
GARDEN
The rear garden mainly laid to lawn with purpose built shed.
COUNCIL TAX
Plymouth City Council
Council Tax Band: A
SERVICES
The property is connected to all the mains services: gas, electricity, water and drainage.


