Room Descriptions
GREEN PARK ROAD, PLYMSTOCK, PL9 9JA
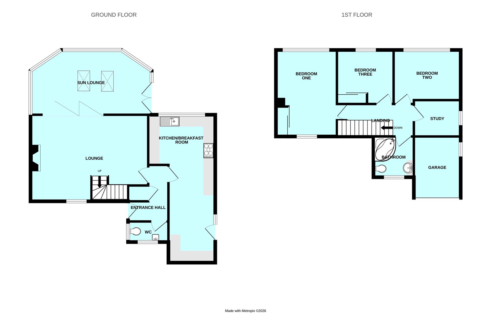
ACCOMMODATION
Front door opening into the entrance hall.
ENTRANCE HALL
Providing access to the accommodation. Under-stairs cupboard.
DOWNSTAIRS CLOAKROOM/WC1.78m x 0.86m (5'10 x 2'10)
Fitted with a wall-hung wc with a concealed cistern and a push-button flush and a basin. Dual aspect with obscured windows with fitted blinds to 2 elevations.
KITCHEN/BREAKFAST ROOM7.26m x 3.28m at widest point (23'10 x 10'9 at wid
A superbly-fitted dual aspect room with windows to the rear and side elevations. Doorway leading to outside. From the rear there are lovely views over the garden towards woodland. Range of cabinets with matching fascias complemented by quartz stone style polished work surfaces and glass splash-backs. Breakfast bar. Inset one-&-a-half bowl sink unit. Space for an American style fridge-freezer. Space for range style cooker. Space and plumbing for washing machine. Inset ceiling spotlights.
LOUNGE5.77m x 4.32m (18'11 x 14'2)
Dual aspect with a window to the front elevation and bi-folding doors providing access into the sun lounge. Chimney breast with fireplace incorporating a fitted 'Living Flame' style gas fire. Staircase ascending to the first floor.
SUN LOUNGE5.49m x 3.33m (18' x 10'11)
Double-glazed windows with fitted blinds. Feature vaulted ceiling with skylights and spotlights. Oak flooring throughout. French doors leading to outside. Lovely views over the south-facing garden towards woodland.
FIRST FLOOR LANDING
Providing access to the first floor accommodation. Loft hatch.
BEDROOM ONE4.32m x 3.05m (14'2 x 10')
Dual aspect within windows to front and rear elevations, with lovely views from the rear. Built-in wardrobe.
BEDROOM TWO3.35m x 2.49m (11' x 8'2)
Window to the rear elevation with views towards woodland. Laminate flooring.
BEDROOM THREE2.59m x 2.59m (8'6 x 8'6)
Window to the rear elevation. Built-in wardrobe. Laminate flooring.
BATHROOM2.06m x 1.85m (6'9 x 6'1)
Comprising a corner-style bath with a shower over, wall-mounted taps, waterproof panelling and a curved glass screen, wc with a push-button flush and basin with storage beneath. Mirrored cabinet over the basin. Laminate flooring. Partly-tiled walls. Obscured window to the front elevation.
STUDY2.41m x 1.78m (7'11 x 5'10)
Created using part of the garage. Laminate flooring. Inset ceiling spotlights. Window to the side elevation. Doorway opening into the garage.
GARAGE2.84m x 2.62m (9'4 x 8'7)
Roller door to the front elevation. Work bench. Power and lighting. Window to the side elevation.
CELLAR/WORKSHOP
Power and lighting. Work bench. Further sub-floor access.
OUTSIDE
A concrete patterned driveway precedes the garage with a matching hard stand. Steps and pathway lead to the main entrance. There are terraced front gardens laid to shrubs and chippings. A pathway leads around the side of the house accessing the rear garden. The rear garden enjoys a southerly aspect and is mainly laid to lawn together with bordering shrub and flower beds. There is a feature elm tree and a natural stone paved patio adjacent to the property.
COUNCIL TAX
Plymouth City Council
Council tax band D


