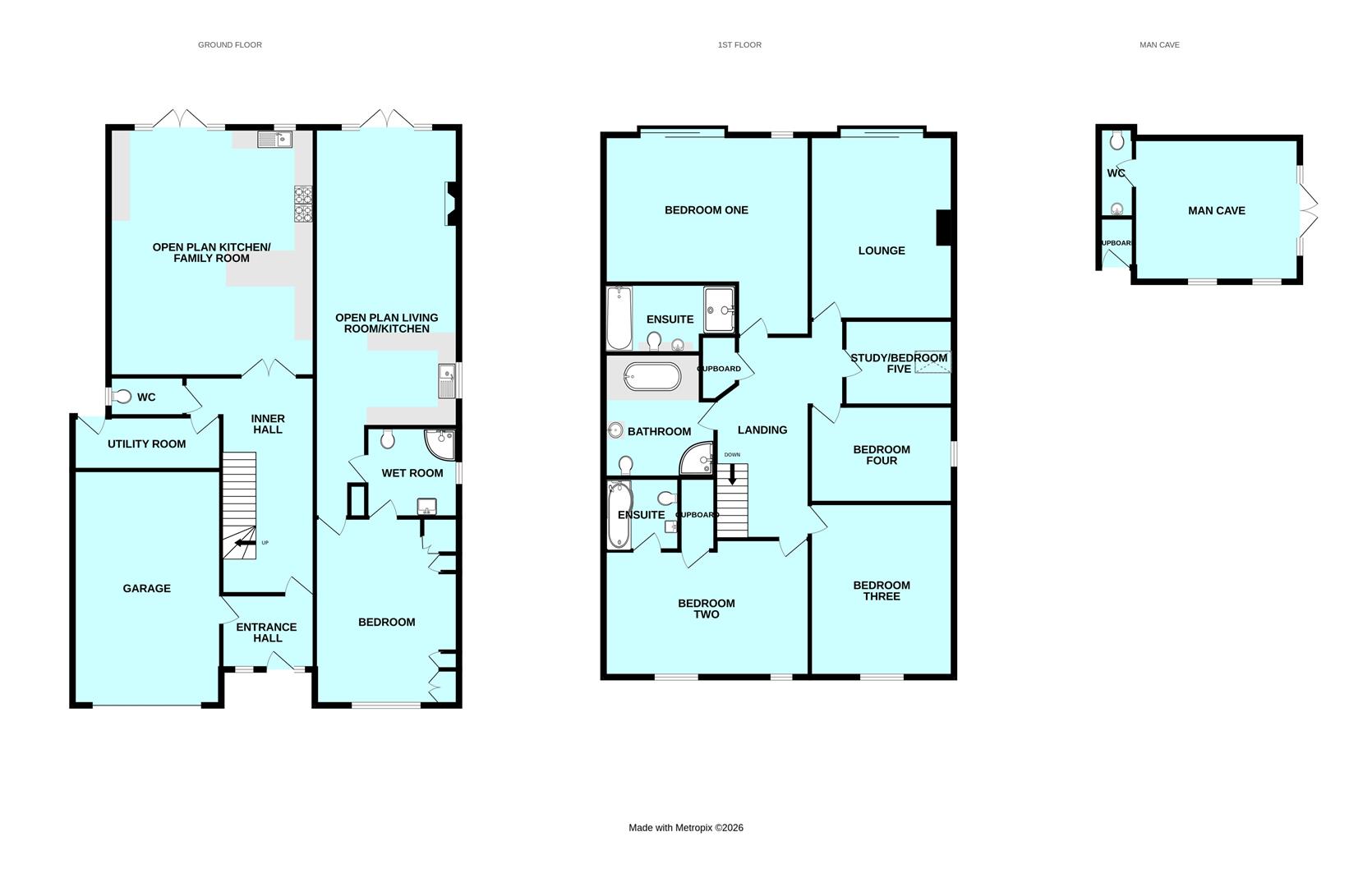
Room Descriptions
UNDERLANE, PLYMSTOCK, PL9 9LA
SUMMARY
A rare opportunity to acquire this substantial detached property, in a highly regarded position, enjoying fantastic views with a south-facing landscaped rear garden. The accommodation briefly comprises entrance & inner hallways, large open plan kitchen/dining/family room with a separate utility & downstairs wc. On the first floor there is a formal lounge with lovely views, 5 bedrooms - 2 with ensuites - & family bathroom. On the ground floor there is a self-contained annexe with a bedroom, a wet room, open plan living room & kitchen. Other features include plentiful off-road parking, an integral garage, gardens & a man cave/bar with patio. Double-glazing, central heating & owned solar panels.
ACCOMMODATION
Front door opening into the entrance hall.
ENTRANCE HALL2.64m x 2.13m (8'8 x 7')
Hardwood flooring. Integral access to the garage. Inset ceiling spotlights. Doorway opening into the annexe. Separate door opening into the inner hall.
INNER HALL5.97m x 2.64m (19'7 x 8'8)
Providing a spacious approach to the ground floor accommodation with a staircase rising to the first floor. Under-floor heating. Double doors opening into the kitchen/dining/family room.
OPEN-PLAN KITCHEN/FAMILY ROOM6.83m x 5.74m (22'5 x 18'10)
A superb open-plan room to the rear of the property with windows and French doors overlooking the garden and beyond. Ample space for dining and seating including a built-in table and breakfast bar. Range of cabinets with matching fascias, work surfaces and splash-backs. Range-style cooker. Inset one-&-a-half bowl single-drainer sink unit. Built-in fridge and freezer. Integral dishwasher. Space for a wine fridge. Inset ceiling spotlights.
UTILITY ROOM4.11m x 1.57m (13'6 x 5'2)
Obscured glazed door to the rear leading to outside. Currently used as a salon.
DOWNSTAIRS CLOAKROOM/WC1.65m x 1.07m (5'5 x 3'6)
Comprising a wc & pedestal basin with tiled splash-back. Tiled floor. Obscured window with a fitted blind to the side elevation.
FIRST FLOOR LANDING5.74m x 2.64m (18'10 x 8'8)
Providing access to the first floor accommodation. Linen cupboard with shelving. Inset ceiling spotlights.
LOUNGE4.98m x 3.94m (16'4 x 12'11)
Sliding double-glazed doors opening onto a stainless-steel & glass Juliette balcony with fabulous views over the garden and beyond, towards Staddon Heights. Chimney breast with an inset glass-fronted fire.
BEDROOM ONE5.74m x 5.38m (18'10 x 17'8)
A large master bedroom with a window to the rear. Sliding double-glazed patio doors opening onto a stainless-steel & glass Juliette balcony with lovely views over the garden and beyond. Doorway to the ensuite bathroom.
ENSUITE BATHROOM3.45m x 1.78m (11'4 x 5'10)
Comprising a bath with a tiled surround, separate double-sized tiled shower, basin and wc with concealed cistern and push-button set into a cabinet providing storage. Wall-mounted cabinets above with mirror and lighting. Velux-style window to the side elevation.
BEDROOM TWO5.74m x 3.56m (18'10 x 11'8)
2 windows to the front elevation. Storage cupboard. Doorway opening into the ensuite bathroom.
ENSUITE BATHROOM2.18m x 1.68m (7'2 x 5'6)
Comprising bath with shower system over and glass screen, wc and basin with drawer storage. Towel rail/radiator. Illuminated, heated mirror. Velux-style window to the side elevation.
BEDROOM THREE4.70m x 3.94m (15'5 x 12'11)
Window to the front elevation.
BEDROOM FOUR3.94m x 2.64m (12'11 x 8'8)
Window to the side elevation.
STUDY/BEDROOM FIVE2.87m x 2.21m (9'5 x 7'3)
Currently used as an office with a Velux-style window to the side elevation.
FAMILY BATHROOM3.48m x 3.00m (11'5 x 9'10)
Comprising Jacuzzi-style double-ended bath with a tiled surround, large separate walk-in shower, wc and circular basin set onto a plinth. Chrome towel rail/radiator. Hardwood flooring. Inset ceiling spotlights. 2 Velux-style windows to the side elevation.
ANNEXE
BEDROOM5.18m x 3.94m (17' x 12'11)
Window with fitted blind to the front elevation. Range of built-in wardrobes and cupboards with matching bedside cabinets. Doorway opening into the wet room. Separate door opening into the hall.
INNER HALL2.87m x 1.50m (9'5 x 4'11)
Inset ceiling spotlights. Built-in cupboard. Doorway providing additional access into the wet room.
OPEN-PLAN LIVING ROOM/KITCHEN7.87m x 3.91m (25'10 x 12'10)
Ample space for seating and dining. To the rear French doors with windows either side, providing lovely views and leading to outside. The kitchen area includes a small breakfast bar and has matching work surfaces, tiled splash-backs and matching cabinets. Stainless-steel single-drainer sink unit. Inset hob. Microwave shelf. Space for free-standing appliances to include plumbing for washing machine. Additional window to the side elevation.
WET ROOM2.69m x 2.26m (8'10 x 7'5)
Built-in shower, wc and basin with plinth to side and storage shelving. Chrome towel rail/radiator. Waterproof floor and panelling around the shower area. Obscured window with a fitted blind to the side elevation.
GARAGE5.84m x 3.94m (19'2 x 12'11)
Integrally accessed from the property with a remote door to the front elevation. To the rear there are storage cabinets and a work surface with a stainless-steel circular inset sink. Space for tumble dryer. Wall-mounted gas boiler. Hot water cylinder. Consumer unit. Solar panel inverter.
MAN CAVE
Fitted out with a bar. Timber panelling to the walls. Wall-mounted electric heater. 2 windows overlooking the garden. French doors opening onto an adjacent patio. Doorway opening into the wc, which is fitted with a basin with drawer storage, wc with concealed cistern and push-button flush. Illuminated mirror. Panelling to the walls.
OUTSIDE
To the front there is a parking area providing ample parking spaces for numerous vehicles. The rear garden, which enjoys a southerly aspect, has been landscaped. There is a paved terrace adjacent to the property, enclosed by a glass and stainless-steel balustrade. Beyond this the remaining garden is laid to lawn with a patio surround and pathway. At the bottom of the garden, adjacent to the man cave, is a further patio area. Behind the man cave is a large, insulated timber shed.
COUNCIL TAX
Plymouth City Council
Council tax band F



