Room Descriptions
LOWERSIDE, WESTON MILL, PLYMOUTH, PL2 2HU
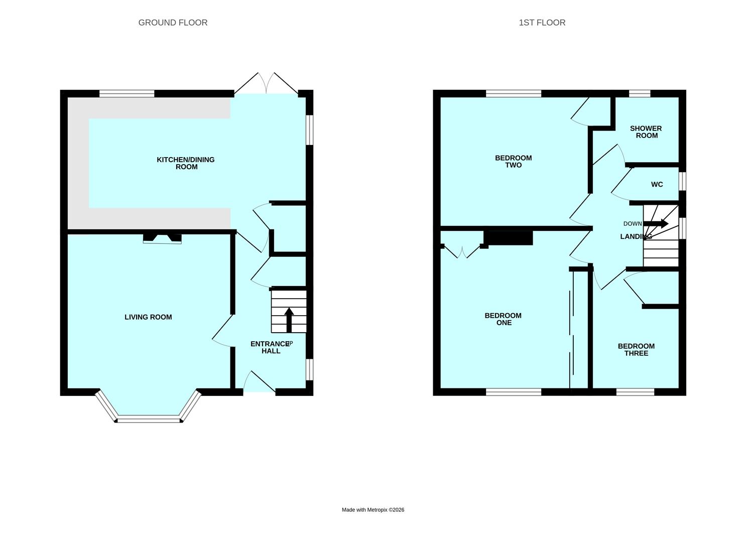
ACCOMMODATION
Entrance via a uPVC double-glazed door with obscured glazed panels opens into the entrance hall.
ENTRANCE HALL3.46m x 1.8m (11'4" x 5'10" )
A light & airy entrance hall with a uPVC double-glazed window to the side. Staircase rising to the first floor landing with under-stairs storage cupboards. Laminate Herringbone style wood flooring. Oak door opening into the kitchen/diner & lounge.
LOUNGE3.83m x 3.97m plus the bay (12'6" x 13'0" plus the
Feature fireplace with stone hearth mantle & surround with inset living flame gas fire. Covings. uPVC double-glazed bay window to the front.
KITCHEN/DINER5.9m x 3.52m (19'4" x 11'6")
Attractive matching base & wall mounted units to include integrated fridge/freezer, twin Belling oven & dishwasher. Space for a washing machine. Incorporated pull-out bins & larder storage cupboards. Roll edge work surface has inset 4 ring gas hob with extractor hood over. Matching up-stands. 1.5 bowl sink unit with mixer tap. uPVC double-glazed window to the rear overlooking the garden. Grey wood effect Herringbone style flooring. Ceiling spotlight. Smart light strip above wall mounted units. Ample space for dining table. uPVC double-glazed window to the side. Contemporary wall mounted upright radiator to one wall. Oak door opens to a storage cupboard. uPVC double-glazed French doors open to the rear garden.
FIRST FLOOR LANDING2.23m x 2.17m (7'3" x 7'1")
Access hatch to roof void. Obscured uPVC double-glazed window to the side. Doors leading to the bedrooms, shower room & wc.
BEDROOM ONE3.63m x 3.83m (11'10" x 12'6")
To include an array of fitted bedroom furniture, wardrobes, hanging rail & shelving. Further storage cupboards to one wall with matching chest of drawers. Ceiling spotlights. uPVC double-glazed window to the front. Laminate wood flooring.
BEDROOM TWO3.63m x 3.07m (11'10" x 10'0")
Door to storage cupboard. uPVC double-glazed window to the rear overlooking the garden.
BEDROOM THREE2.84m x 2.15m maximum (9'3" x 7'0" maximum)
To include a fitted storage cupboard above where the stairwell rises. uPVC double-glazed window to the front.
SHOWER ROOM2.1m x 1.65m maximum (6'10" x 5'4" maximum)
Matching suite of walk-in shower cubical with twin shower heads both rainfall & handheld. Wash hand basin inset into a white high gloss vanity storage cupboards below. Tiled walls. Chrome heated towel rail.Tiled effect laminate flooring. Obscured uPVC double-glazed window to the rear.
WC1.2m x 0.76m (3'11" x 2'5" )
Close coupled wc with hidden cistern. Ceiling spotlights. Obscured uPVC double-glazed window to the side. Tiled walls to dado height. Grey wood effect laminate flooring.
OUTSIDE
The property is approached via a paved path which runs down steps toward the front door. Bordered on one side by twin parking bays. Electric vehicle charger.
GARDEN
To the rear a large paved patio seating area. Side access with wooden gate to the front of the property. Wooden shed. Purpose built shed with barbecue area fitted to one end. Steps lead down from the right hand side of the garden towards the lower section, whereby there is a further paved area, which is bordered by stone chippings & raised lawn terraces with inset shrubs & plants.
COUNCIL TAX
Plymouth City Council
Council Tax Band: A
SERVICES
The property is connected to all the mains services: gas, electricity, water and drainage.


