Room Descriptions
POWISLAND DRIVE, DERRIFORD, PLYMOUTH, PL6 6AD
LOCATION
Found in this prime popular established residential area of Derriford, with local services and amenities to hand. The position convenient for access into the city and nearby connection to major routes in other directions. With access out to Dartmoor and all that it offers.
ACCOMMODATION
A most well presented extended modern detached house, believed to have been built in the 1960s, maintained & improved by the present owners, providing a most spacious comfortably appointed family home offering flexibility of layout & usage. Having the potential for 6 bedrooms, or possibilities perhaps to create an annexe. An impressive heating system with Vaillant gas fired boiler combined with Viessmann water tank etc. Standing on a generous sized plot with good parking facilities & at the rear with delightful relatively large landscaped gardens. Enjoying some long views from the rear.
RECENT IMPROVEMENTS
Recent improvements & upgrades in the last 2 years include new kitchen appliances with new freezer, dishwasher & Quooker boiling water tap/filter, new granite worktops & up-stands. A new front door & new garage door. External redecoration & remodelling/landscaping of the rear garden with extensive new patio/seating areas.
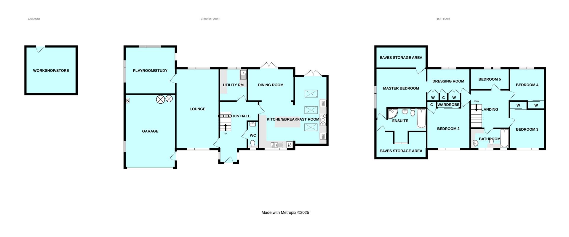
GROUND FLOOR
New front door.
RECEPTION HALL5.66m x 3.23m max (18'7 x 10'7 max)
WC
Wash hand basin and wc.
LOUNGE6.78m x 3.63m (22'3 x 11'11)
PLAYROOM/STUDY4.27m x 3.99m (14'0 x 13'1 )
UTILITY ROOM2.74m x 2.34m (9'0 x 7'8)
KITCHEN/BREAKFAST ROOM/DINING ROOM6.99m x 5.77m (22'11 x 18'11)
High quality units with large central island & storage, a range of integrated appliances including separate fridge and freezer, dishwasher, double oven, five ring induction hob, sink with waste disposal, multiple lighting & vaulted ceiling to part.
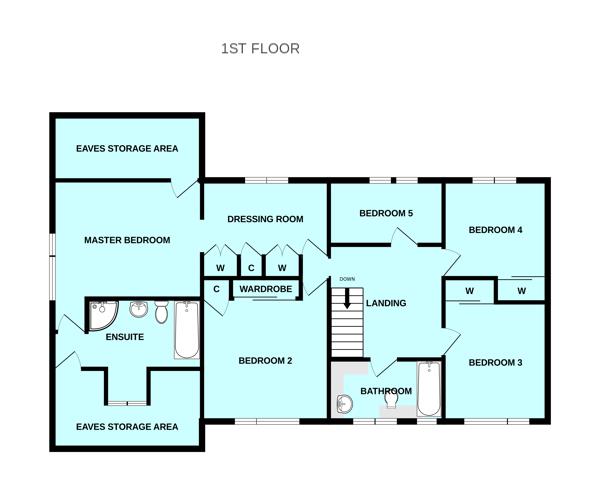
FIRST FLOOR
LANDING
MASTER BEDROOM SUITE
DRESSING ROOM3.61m x 2.13m (11'10 x 7'0 )
Built-in wardrobes.
MASTER BEDROOM4.32m x 3.28m (14'2 x 10'9)
EN-SUITE BATHROOM
Quality suite with bath, separate shower, wash hand basin and wc.
BEDROOM TWO3.94m x 3.61m (12'11 x 11'10)
Bulit-in wardrobes.
BEDROOM THREE3.28m x 3.05m (10'9 x 10'0 )
Built-in wardrobe.
BEDROOM FOUR3.05m x 2.74m (10'0 x 9'0 )
Built-in wardrobe.
BEDROOM FIVE2.67m x 1.83m (8'9 x 6'0)
FAMILY BATHROOM
Quality suite with bath, wc, and wash hand basin.
EXTERNALLY
Excellent parking on drive, space for up to six vehicles. Delightful mature gardens, generous sized enclosed to the rear, landscaped, patios & gardens ideal for alfresco entertaining.
GARAGE6.10m x 4.78m (20'0 x 15'8)
Vaillant gas boiler, large capacity hot water tanks. Remote roller door.
WORKSHOP/STORE4.24m x 3.73m (13'11 x 12'3 )
Power and lighting.
AGENTS NOTE
Plymouth City Council
Council Tax Band G



